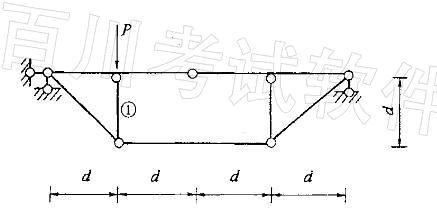
图示结构杆①的轴力为:A.0 B. -P C.P D. -P/2

作者: rantiku 人气: - 评论: 0
问题 图示结构杆①的轴力为: A.0 B. -P C.P D. -P/2
选项
答案 D
解析 提示:求右支座反力,用截面法求下弦杆轴力,再用结点法求N1。

猜你喜欢

发表评论
更多 网友评论0 条评论)
暂无评论

访问排行

Copyright © 2012-2014 恰考网 Inc. 保留所有权利。 Powered by tikuer.com

页面耗时0.0318秒, 内存占用1.03 MB, Cache:redis,访问数据库19次