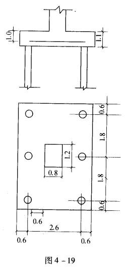
柱下桩基如图4-19所示,承台混凝土抗压强度f1=1.71MPa;按《建筑粧基技术规范》(JGJ 94—2008)计算承台长边受剪承载力,其值最接近( )...

作者: rantiku 人气: - 评论: 0
问题 柱下桩基如图4-19所示,承台混凝土抗压强度f1=1.71MPa;按《建筑粧基技术规范》(JGJ 94—2008)计算承台长边受剪承载力,其值最接近( )MN。 A. 6.5 B. 8.5 3 C. 10.5 D. 12.5
选项
答案 B
解析 根据《建筑桩基技术规范》(JGJ 94—2008)第 5.9. 10条进行计算,承台受剪承载力应按式(5. 9. 10- 1)计算。 高度影响系数用内插法计算得:

猜你喜欢

发表评论
更多 网友评论0 条评论)
暂无评论

访问排行

Copyright © 2012-2014 恰考网 Inc. 保留所有权利。 Powered by tikuer.com

页面耗时0.0549秒, 内存占用1.03 MB, Cache:redis,访问数据库19次