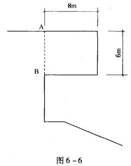
一悬崖上突出一矩形截面的完整岩体,如图6-6所示,长L为8m,厚(高)h为6m,重度y为22kN/m3,允许抗拉强度[σ1]为1.5MPa,试问该岩体拉裂...

作者: rantiku 人气: - 评论: 0
问题 一悬崖上突出一矩形截面的完整岩体,如图6-6所示,长L为8m,厚(高)h为6m,重度y为22kN/m3,允许抗拉强度[σ1]为1.5MPa,试问该岩体拉裂崩塌的稳定系数最接近于下列何项数值? ( ) A. 2.2 B. 1.8 C. 1.4 D. 1.1
选项
答案 A
解析

猜你喜欢

发表评论
更多 网友评论0 条评论)
暂无评论

访问排行

Copyright © 2012-2014 恰考网 Inc. 保留所有权利。 Powered by tikuer.com

页面耗时0.0459秒, 内存占用1.03 MB, Cache:redis,访问数据库20次