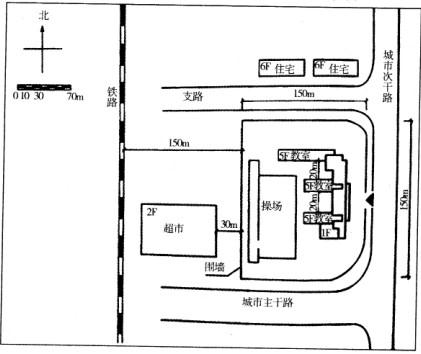
所示为某市市区边缘地段拟建的一所18班小学。【问题】请指出该小学在选址和总平面布置中存在的主要问题。

作者: rantiku 人气: - 评论: 0
问题 所示为某市市区边缘地段拟建的一所18班小学。 【问题】 请指出该小学在选址和总平面布置中存在的主要问题。
选项
答案
解析 (1)小学选址不当,紧靠城市干道,且距铁路线太近。 (2)小学教学楼不应超过4层。 (3)主出入口不宜开向城市干道。 (4)教室长边之间距离不应少于25m。 (5)教室的长边与运动场的间距不应小于25m。 【解析】 此题主要考虑的是各种干扰因素。一方面是噪声干扰,比如铁路的交通噪声、城市道路的交通噪声、操场噪声、小学各教室之间声音。另一方面是交通干扰,小学出入口不宜开在城市干道上,不仅是家长接送学生带来的人车流集散容易影响城市干道交通.也是考虑学生安全。另外还可以考虑教学楼南北方向上的日照间距是否满足标准,教室应有充足日照采光。

猜你喜欢

发表评论
更多 网友评论0 条评论)
暂无评论

访问排行

Copyright © 2012-2014 恰考网 Inc. 保留所有权利。 Powered by tikuer.com

页面耗时0.0379秒, 内存占用1.03 MB, Cache:redis,访问数据库18次