图所示为某城市新区主干路AB与次干路CD交叉口规划平面图,规划主干路AB的横断面为双向6条机动车道三块板布置,次干路CD的横断面为双向4条机动车道一块板布...

作者: tihaiku 人气: - 评论: 0
问题

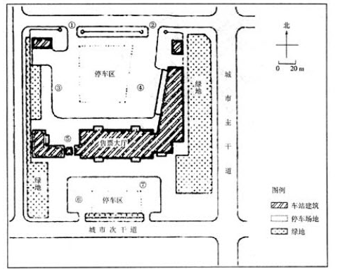
图所示为某城市新区主干路AB与次干路CD交叉口规划平面图,规划主干路AB的横断面为双向6条机动车道三块板布置,次干路CD的横断面为双向4条机动车道一块板布置。交叉口设置了5个公交停靠站,其中②、③、⑤号站为直行、右转公交站,①、④号站为左转公交站,停靠站距交叉口如图1所示。

【问题】

试指出该交叉口规划平面布置存在的问题。

选项

(1)缺乏交叉口拓宽措施。

(2)次干路CD横断面的双向4车道画成双向6车道。

(3)分隔带距离交叉口过近,压占人行横道。

(4)交叉口公交车站设置过多,换乘及间距不合理。

(5)公交停靠站点压占人行横道。

(6)道路红线用双点画线表示不合规则制图规范。

(7)公交停靠站未布置为港湾式。

(8)公交停靠站应退后红线。

(9)①号公交停靠站不应布置在进口道上,④号、

⑤号站距交叉口过近。

【解析】

本案例主要涉及平面道路交叉口问题。

一般考道路交叉口涉及交叉口拓宽、道路分隔带、人行横道、安全岛、交通渠化、左转弯交通组织、公交站布置等。

道路交叉口通行能力一般低于路段通行能力,因此需要进行拓宽,进口段出口段拓宽一致。图中公交站未采取港湾式,距交叉口太近时,到站等候的公交车会影响后续车辆快速通过交叉口,造成交叉口堵塞。且公交站数量太多,同线路的应尽量合并,注意区间距离。根据20 1 1版《城市道路交叉口规划规范》,右转公交车站可在交叉口进口道上。公交站与交叉口之间的距离过小会导致停靠车辆排队溢出,不符合规范。分隔带不宜距交叉口过近,会造成车辆转弯不便。当道路中车行道数量大于等于6条时,道路宽度较大,应在中央设置不小于1m的安全岛。

答案
解析

相关内容:城市,新区,主干路,干路,交叉口,规划,平面图,横断,机动,车道,三块,一块,板布

猜你喜欢

发表评论
更多 网友评论0 条评论)
暂无评论

访问排行

Copyright © 2012-2014 恰考网 Inc. 保留所有权利。 Powered by tikuer.com

页面耗时0.0603秒, 内存占用1.05 MB, Cache:redis,访问数据库20次