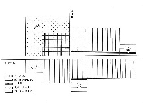
某镇区,北侧为水源涵养地和风景区,过境公路自西向东穿城而过,城区有一条南北方向的主干路。过境公路北部城区的西侧为工业,东侧为居住和商业等,布置了一个医院,...

作者: tihaiku 人气: - 评论: 0
问题

某镇区,北侧为水源涵养地和风景区,过境公路自西向东穿城而过,城区有一条南北方向的主干路。过境公路北部城区的西侧为工业,东侧为居住和商业等,布置了一个医院,过境公路南侧城区主要为居住用地,沿过境公路布置一个长途车站。在县城的南端,有一所小学。该镇为传统的农业镇,现在准备发展电解铝等产业。

【问题】

请就产业发展、布局、市政、道路四方面分析该镇总体规划方案存在的问题。

选项

(1)产业发展:该镇准备发展电解铝产业不合理。总体规划确定镇的产业发展方向应结合自身发展历史和资源环境的特点确定。该镇为传统的农业镇,北侧为水源涵养区和风景区。如发展电解铝,一方面没有有效发挥传统农业镇自身优势和水源涵养地、风景区的环填优势,另一方面电解铝产业将造成环境污染,不利于水源涵养地和风景区等自然环境的保护。

(2)布局:建设用地不应跨越布置。在造成城市功能和景观割裂的同时,带来交通噪声污染和粉尘污染,且不利于南北城区的整体规划建设。过境公路两侧应设置一定宽度的防护绿带。工业区不应临近水源涵养地和风景区布置,应设置一定宽度的隔离绿带。居住与风景区未直接相邻,不利于优质居住环境的营造。医院不宜与过境交通干道相邻,过境交通将造成医院噪声和粉尘影响,且位于县城最东端,距离县城西部居住用地较远,使用不便。小学位于县城南端,与北侧居住区距离较远,使用不便。

(3)市政:垃圾填埋场选址位于风景区和水源涵养地中间,不合理。垃圾填埋场选址其周边应有一定宽度的绿化隔离带;垃圾填埋场内的渗滤液等可能引起地下水的污染;垃圾填埋场与规划风景区用地的功能相互有影响,不利于自然资源的保护和风景区的旅游产业开发。长途车站选址不合理,与过境公路相连,将对过境公路的交通产生影响;不宜与居住用地相邻,易对居住环境造成影响。

(4)道路:城区南北仅一条主干道,缺少次干路系统,干路交通系统不完善;过境交通穿越城区,南北城区联系不便,若建高架或地下通道,建设成本较高。

【解析】

第一句对镇区的自然环境和交通设施情况进行了介绍。水源涵养地和风景区都对环境和周边设施有一定的要求,因此我们在题于中应核对产业发展方向和基础设施的规划是否能够满足永源涵养地和风景区的要求。

第二句提到了沿过境公路布置城市建设用地,明显不合理。一方面不利于发挥过境公路的交通作用,另一方面也不利于城市建设用地的整体布局。在具体用地布局中还提到了居住、医院、学校等内容,这些都属于敏感性建筑,对周边用地性质有一定要求,在答题中也应重点分析。此外,还提到了长途车站,作为内部交通设施,一方面要与交通体系配合,另一方面由于大量的交通流量,对周边环境有一定的噪声影响。由例题的最后一句话可知,此题为一道反例,并且局限总体规划方案在产业发展、布局、市政、道路四个方面找出规划中的问题。

答案
解析

相关内容:镇区,水源,涵养,风景区,过境,公路,向东,穿城,城区,南北,方向,主干路,为工业,东侧,商业,医院

猜你喜欢

发表评论
更多 网友评论0 条评论)
暂无评论

访问排行

Copyright © 2012-2014 恰考网 Inc. 保留所有权利。 Powered by tikuer.com

页面耗时0.0477秒, 内存占用1.05 MB, Cache:redis,访问数据库17次