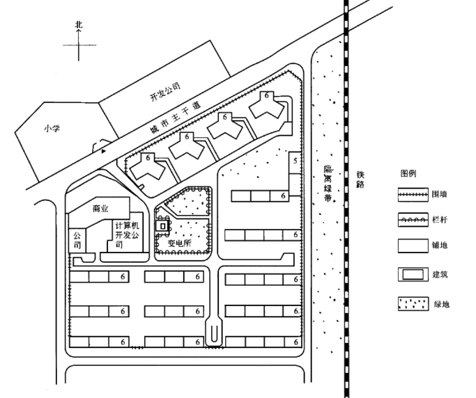
某居住组团已建成人住(现状示意图如图1-12所示)。 请指出该居住组团规划在环境、交通及安全方面存在的主要问题。1.小学学校在城市主干道另...

作者: tihaiku 人气: - 评论: 0
问题

某居住组团已建成人住(现状示意图如图1-12所示)。

请指出该居住组团规划在环境、交通及安全方面存在的主要问题。

选项

1.小学学校在城市主干道另一侧,学生上学不方便。

2.组团出人口开在主干道上,影响交通和安全。

3.组团出入口距两侧道路交叉口太近且仅有一个出入口。

4.变电所位置不合理,对环境有影响。

5.没有停车场地。

6.商业及公司的机动车出人口不应开在宅前小路(或小区路)上。

答案
解析

相关内容:现状,示意图,如图,1-12所示,规划,环境,交通,方面,问题,小学,学校在,城市,主干道

猜你喜欢

发表评论
更多 网友评论0 条评论)
暂无评论

访问排行

Copyright © 2012-2014 恰考网 Inc. 保留所有权利。 Powered by tikuer.com

页面耗时0.0445秒, 内存占用1.04 MB, Cache:redis,访问数据库18次