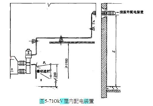
图5-7为1OkV屋内配电装置,安装地的海拔髙度不超过 1000m,请按最小电气安全净距的要求,分别回答下列问题(以mm为单位):若将图中的栅状遮...

作者: rantiku 人气: - 评论: 0
问题 图5-7为1OkV屋内配电装置,安装地的海拔髙度不超过 1000m,请按最小电气安全净距的要求,分别回答下列问题(以mm为单位): 若将图中的栅状遮栏改为网孔不大于40mmX40mm的网状遮栏,则图5-7中所示 标示的B1值是( )。(屋内施工误差30mm)
选项 A. 200mm; B. 225mm; C 195mm; D. 180mm.
答案 B
解析 依据GB 50056-1992《3~IlOkV高压配电装置设计规范》第5.1. 3条。

猜你喜欢

发表评论
更多 网友评论0 条评论)
暂无评论

访问排行

Copyright © 2012-2014 恰考网 Inc. 保留所有权利。 Powered by tikuer.com

页面耗时0.0634秒, 内存占用1.03 MB, Cache:redis,访问数据库19次