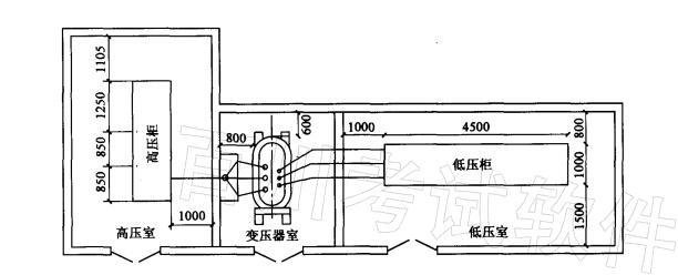
找出下面的10kV变电所平面布置图(尺寸单位:mm)中,有几处不符合规范的要求?并请逐条说明正确的做法是什么。图中油浸变压器容量为1250kV.A,低压柜...

作者: rantiku 人气: - 评论: 0
问题 找出下面的10kV变电所平面布置图(尺寸单位:mm)中,有几处不符合规范的要求?并请逐条说明正确的做法是什么。图中油浸变压器容量为1250kV.A,低压柜为固定式配电屏(注:图中未标注的尺寸不用校验)。 ( ) (A)—处 (B)两处 (C)三处 (D)四处
选项
答案 C
解析 《10kV及以下变电所设计规范》(GB50053—1994)第4.2.4条(变压器外廓与后壁距离不符合要求)、第4.2.9条(低压配电柜柜后通道不符合要求)、第6.2.2条(配电室的门开启方向不符合要求)。 注:第6.2.1条,高压配电室宜设不能开启的自然采光窗,因其为"宜" ,图中设计不违反规范。

猜你喜欢

发表评论
更多 网友评论0 条评论)
暂无评论

访问排行

Copyright © 2012-2014 恰考网 Inc. 保留所有权利。 Powered by tikuer.com

页面耗时0.0429秒, 内存占用1.03 MB, Cache:redis,访问数据库20次