背景资料:   某施工单位承接了长35.8km 的二级公路旧路面“白改黑”改建施工,旧路面为水泥混凝土面层,使用10 年后面板损坏严重,必须重建。经设...

作者: rantiku 人气: - 评论: 0
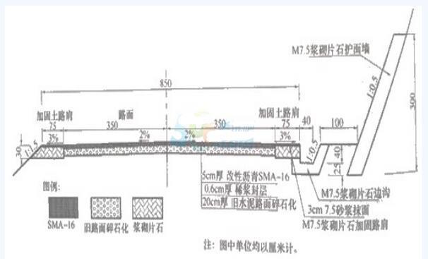
问题 背景资料:   某施工单位承接了长35.8km 的二级公路旧路面“白改黑”改建施工,旧路面为水泥混凝土面层,使用10 年后面板损坏严重,必须重建。经设计院按旧路改建设计后,将旧路面做碎石化处理,加铺SMA 面层。在右侧岩层破碎的挖方路段增设碎落台和护面墙。路面结构如下图所示。 事件一:施工单位针对旧路面碎石化施工做了详细的技术交底,现将部分技术要点摘录如下:   ①在路面碎石化施工正式开始之前,选择有代表性的路段作为试验段,获取破碎参数。②在正常碎石化施工过程中,应根据路面实际情况对破碎参数不断做出微小的调整。③路面破碎时,先破碎中部的行车道,然后路面侧边的车道。两幅破碎一般要保证10cm 左右的搭接破碎宽度。④机械施工过程中要灵活调整行进随度、落锤高度、频率等,尽量达到破碎均匀。⑤路面碎石化后应清除路面中所有松散的填缝料、胀缝料、切割移除暴露的加强钢筋或其他类似物。⑥路面碎石化后进行压实,表面低凹处在压实前采用粘土回填、找平,以保证加铺沥青面层的平整度。   事件二:SMA 的碾压遵循一定的原则:碾压温度越高越好,摊铺后应立即压实,不得等候。SMA路面碾压宜采用振动钢轮压路机初压1~2 遍、复压2~4 遍、终压1 遍的组合方式。SMA 面层施工切忌使用胶轮压路机或组合式压路机。采用振动压路机时,宜用高频率、低振幅。   事件三:护面墙基坑开挖后,按照《高处作业分级》,根据护面墙砌筑作业区的高处作业高度,护面面墙砌筑按高处作业进行施工,严格按高处作业的相关技术要求执行。   问题:   1.改正旧路面碎石化技术要点中的错误之处。   2.用八个字总结事件二中提及的SM
选项 A 碾压原则。   3.计算图中边沟的最大过水面积。   4.写出事件二中切忌使用胶轮压路机或组合式压路机的理由。   5.背景中护面墙砌筑作业的高处作业高度是多少?按照高处作业分级,该作业属于哪一项高处作业?
答案
解析  1.③改正:路面破碎时,先破碎路面侧边的车道,然后破碎中部的行车道。   ⑥改正:表面凹处在10cm*10cm 以内,在压实前可以用密级配碎石回填,10cm*10cm 以上的应利用沥青混合料找平,以保证加铺沥青面层的平整度。   2.“紧跟、慢压、高频、低幅”原则。   3.最大过水面积:(0.4+0.6)*0.4/2=0.2 ㎡。   4.理由:防止胶轮压路机或组合式压路机的轮胎将结构部沥青“泵吸”到路表面,使路表失去纹理和粗糙度。   5.护面墙砌筑的高处作业高度是3m。高处作业高度在2~5m 时,属于Ⅰ级高处作业。

猜你喜欢

发表评论
更多 网友评论0 条评论)
暂无评论

访问排行

Copyright © 2012-2014 恰考网 Inc. 保留所有权利。 Powered by tikuer.com

页面耗时0.0304秒, 内存占用1.03 MB, Cache:redis,访问数据库14次