某公司承建一座桥梁工程,桥梁上部结构为9孔30m后张法预应力混凝土T梁,桥宽横断面布置T梁12片,T梁支座中心线距梁端600mm,T梁横截面如图4-1所示...

作者: rantiku 人气: - 评论: 0
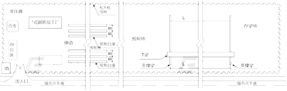
问题 某公司承建一座桥梁工程,桥梁上部结构为9孔30m后张法预应力混凝土T梁,桥宽横断面布置T梁12片,T梁支座中心线距梁端600mm,T梁横截面如图4-1所示。 在桥位线路上现有道路旁租地建设T梁预制场,平面布置如图4-2所示,同时编制了预制场的建设方案: (1)混凝土采用商品混凝土; (2)预测台座数量按预制工期120天、每片预制梁占用台座时间为10天配置; (3)在T梁预制施工时,现浇湿接缝钢筋不弯折,两个相邻预制台座间要求具有宽度2m的支模及作业空间; (4)露天钢材堆场经平整碾压后表面铺砂厚50mm; (5)由于该次干道位于城市郊区,预制场地用地范围采用高1.5m的松木桩挂网围护。 监理审批预制场地建设方案时,指出预制场围护不符合规定,在施工过程中发生了如下事件:事件一:雨季导致现场堆放的钢绞线外包装腐烂破损,钢绞线堆放场处于潮湿状态。事件二:T梁钢筋绑扎,钢绞线安装、支模等工作完成并检验合格后,项目部开始浇筑T梁混凝土,混凝土采用从一端到另一端一次性全断面浇筑完成。问题: 1.全桥共有T梁共有多少片 为完成T梁预制任务最少应设置多少个预制台座 均需列式计算 2.列式计算图4-2中预制台座的间距B和支撑梁的间距L。(单位以m表示) 3.给出预制场围护结构的正确做法 4.事件一的钢绞线应如何存放 5.事件二中,T梁混凝土应如何正确浇筑
选项
答案
解析 未作答

猜你喜欢

发表评论
更多 网友评论0 条评论)
暂无评论

访问排行

Copyright © 2012-2014 恰考网 Inc. 保留所有权利。 Powered by tikuer.com

页面耗时0.0657秒, 内存占用1.04 MB, Cache:redis,访问数据库19次