背景资料:   某施工单位承接了长35.8km 的二级公路旧路面“白改黑”改建施工,旧路面为水泥混凝土面层,使用10 年后面板损坏严重,必须重建。经设...

作者: rantiku 人气: - 评论: 0
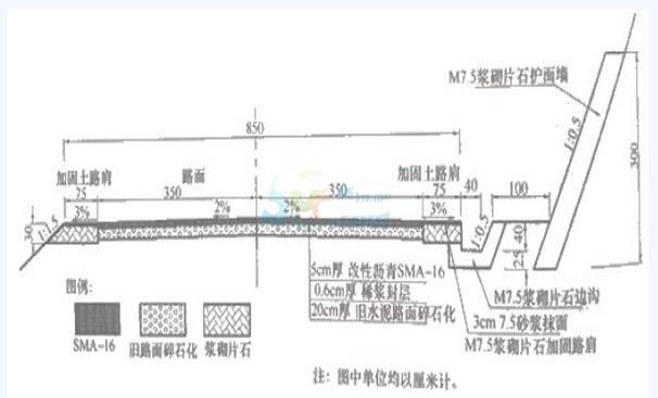
问题 背景资料:   某施工单位承接了长35.8km 的二级公路旧路面“白改黑”改建施工,旧路面为水泥混凝土面层,使用10 年后面板损坏严重,必须重建。经设计院按旧路改建设计后,将旧路面做碎石化处理,加铺SMA 面层。在右侧岩层破碎的挖方路段增设碎落台和护面墙。路面结构如下图所示。 事件一:施工单位针对旧路面碎石化施工做了详细的技术交底,现将部分技术要点摘录如下:   ①在路面碎石化施工正式开始之前,选择有代表性的路段作为试验段,获取破碎参数。②在正常碎石化施工过程中,应根据路面实际情况对破碎参数不断做出微小的调整。③路面破碎时,先破碎中部的行车道,然后路面侧边的车道。两幅破碎一般要保证10cm 左右的搭接破碎宽度。④机械施工过程中要灵活调整行进随度、落锤高度、频率等,尽量达到破碎均匀。⑤路面碎石化后应清除路面中所有松散的填缝料、胀缝料、切割移除暴露的加强钢筋或其他类似物。⑥路面碎石化后进行压实,表面低凹处在压实前采用粘土回填、找平,以保证加铺沥青面层的平整度。   事件二:SMA 的碾压遵循一定的原则:碾压温度越高越好,摊铺后应立即压实,不得等候。SMA路面碾压宜采用振动钢轮压路机初压1~2 遍、复压2~4 遍、终压1 遍的组合方式。SMA 面层施工切忌使用胶轮压路机或组合式压路机。采用振动压路机时,宜用高频率、低振幅。   事件三:护面墙基坑开挖后,按照《高处作业分级》,根据护面墙砌筑作业区的高处作业高度,护面面墙砌筑按高处作业进行施工,严格按高处作业的相关技术要求执行。   问题:   1.改正旧路面碎石化技术要点中的错误之处。   2.用八个字总结事件二中提及的SM
选项 A 碾压原则。   3.计算图中边沟的最大过水面积。   4.写出事件二中切忌使用胶轮压路机或组合式压路机的理由。   5.背景中护面墙砌筑作业的高处作业高度是多少?按照高处作业分级,该作业属于哪一项高处作业?
答案
解析  1.③改正:路面破碎时,先破碎路面侧边的车道,然后破碎中部的行车道。   ⑥改正:表面凹处在10cm*10cm 以内,在压实前可以用密级配碎石回填,10cm*10cm 以上的应利用沥青混合料找平,以保证加铺沥青面层的平整度。   2.“紧跟、慢压、高频、低幅”原则。   3.最大过水面积:(0.4+0.6)*0.4/2=0.2 ㎡。   4.理由:防止胶轮压路机或组合式压路机的轮胎将结构部沥青“泵吸”到路表面,使路表失去纹理和粗糙度。   5.护面墙砌筑的高处作业高度是3m。高处作业高度在2~5m 时,属于Ⅰ级高处作业。

猜你喜欢

发表评论
更多 网友评论0 条评论)
暂无评论
错误啦!

错误信息

  • 消息: [程序异常] : MISCONF Redis is configured to save RDB snapshots, but it's currently unable to persist to disk. Commands that may modify the data set are disabled, because this instance is configured to report errors during writes if RDB snapshotting fails (stop-writes-on-bgsave-error option). Please check the Redis logs for details about the RDB error.
  • 文件: /twcms/kongphp/cache/cache_redis.class.php
  • 位置: 第 85 行
    <?php echo 'KongPHP, Road to Jane.'; ?>