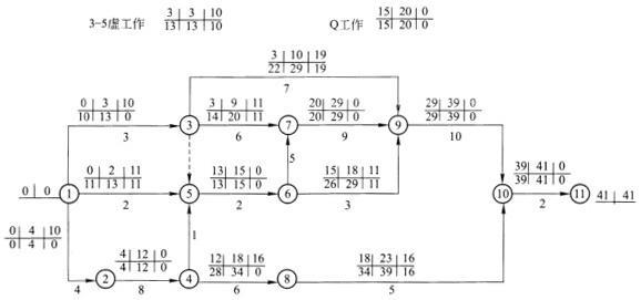
某工程项目分解后,根据工作间的逻辑关系绘制的双代号网络计划如下图所示。工程实施到第12天末进行检查时各工作进展如下:A、B、C三项工作已经完成,D与G工作...

作者: rantiku 人气: - 评论: 0
问题 某工程项目分解后,根据工作间的逻辑关系绘制的双代号网络计划如下图所示。工程实施到第12天末进行检查时各工作进展如下:A、B、C三项工作已经完成,D与G工作分别已完成5天的工作量,E工作完成了4天的工作量。 问题: 1.该网络计划的计划工期为多少天? 2.哪些工作是关键工作? 3.按计划的最早进度,D.E.G三项工作是否已推迟?推迟的时间是否影响计划工期?
选项
答案
解析 1.通过网络计算,总工期41天。 2.关键线路的工作为:C→D→R→H→Q→J→M→N。 3.实际工作分析:D工作滞后3天,预计完成时间为第15天。因属于关键工作,导致总工期推迟3天。E工作滞后3天,预计完成时间为第15天。因有总时差19天,对总工期不产生影响。G工作滞后1天,预计完成时间为第13天。因有总时差11天,对总工期不产生影响。由于图中位置所限,将Q和3-5工作置于图外:

猜你喜欢

发表评论
更多 网友评论0 条评论)
暂无评论

访问排行

Copyright © 2012-2014 恰考网 Inc. 保留所有权利。 Powered by tikuer.com

页面耗时0.0360秒, 内存占用1.03 MB, Cache:redis,访问数据库14次