某平原区拦河闸工程,设计流量860m3/s,校核流量1050m3/s,闸室结构如下图所示。本工程施工采用全段围堰法导流,上、下游围堰为均质土围堰,闸基为轻...

作者: rantiku 人气: - 评论: 0
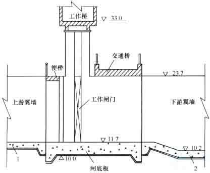
问题 某平原区拦河闸工程,设计流量860m3/s,校核流量1050m3/s,闸室结构如下图所示。本工程施工采用全段围堰法导流,上、下游围堰为均质土围堰,闸基为轻粉质砂壤土,基坑采用深井降水。施工过程中突然发现上游围堰后(基坑侧)有大面积管涌群,施工单位为防止事故发生,及时就近挖取黏性土进行封堵,随着上游水位继续上涨,封堵失败,围堰决口,导致刚浇筑的闸室底板、下游消能防冲设施被冲毁,造成直接经济损失100万元。事故发生后,施工单位按“四不放过原则”,组织有关单位制定处理方案,报监理机构批准后,对事故进行了处理,处理后不影响工程正常使用,对工程使用寿命影响不大。 1.说明该拦河闸工程的等别及闸室和围堰的级别;指出图中建筑物部位1和2的名称。 2.本工程事故发生前施工单位对管涌群采取的处理措施有何不妥?并简要说明本工程管涌的抢护原则和正确抢护措施。 3.根据《水利工程质量事故处理暂行规定》,水利工程质量事故一般分为哪几类?并指出本工程质量事故类别。 4.根据水利部《关于贯彻质量发展纲要、提升水利工程质量的实施意见》(水建管[2012]581号),说明背景材料中“四不放过原则”的具体内容。
选项
答案
解析 1.工程等别为Ⅱ等;闸室级别为2级;围堰级别为4级。图中:1为铺盖、2为消力池。 2.施工单位采用黏性土对管涌群进行封堵不妥。 管涌的抢护原则是:制止涌水带砂,而留有渗水出路。 本工程的正确抢护措施:用透水性较好的砂、石、土工织物、梢料等反滤材料在管涌群出口处进行压盖。 3.水利工程质量事故分为一般质量事故、较大质量事故、重大质量事故、特大质量事故。本工程质量事故类别为较大质量事故。 4.事故原因不查清楚不放过,主要事故责任者和职工未受到教育不放过,补救和防范措施不落实不放过,责任人员未受到处理不放过。 【试题解析】? 【解析】1.此题考察考生对水利水电工程等级划分及水闸工程布置的掌握情况。 根据《水利水电工程等级划分及洪水标准》SL252-2000和《水闸设计规范》SL265-2001的规定,本工程等别为Ⅱ等;闸室级别为2级;围堰级别为4级。图中铺盖、消力池为水闸工程布置的常识。 2.此题考察水利工程险情处理的有关要求,考核考生对管涌处理的掌握情况。上述管涌的抢护原则和抢护措施是水利工程防汛抢险的一般常识。 3.此题考察水利工程质量事故处理管理规定在水利工程建设中的应用,考核考生对水利工程质量事故分类的掌握情况。 根据《水利工程质量事故处理暂行规定》,工程质量事故按直接经济损失的大小,检查、处理事故对工期的影响时间长短和对工程正常使用的影响,分为一般质量事故、较大质量事故、重大质量事故、特大质量事故。其中: 一般质量事故指对工程造成一定经济损失,经处理后不影响正常使用并不影响使用寿命的事故。 较大质量事故指对工程造成较大经济损失或延误较短工期,经处理后不影响正常使用但对工程使用寿命有一定影响的事故。 重大质量事故指对工程造成重大经济损失或较长时间延误工期,经处理后不影响正常使用但对工程使用寿命有较大影响的事故。 特大质量事故指对工程造成特大经济损失或长时间延误工期,经处理仍对正常使用和工程使用寿命有较大影响的事故。 本工程刚浇筑的闸室底板、下游消能防冲设施被冲毁,造成直接经济损失100万元。事故处理后不影响工程正常使用,对工程使用寿命影响不大。事故等级应定为较大质量事故。 4.此题考察水利工程质量事故处理管理规定在水利工程建设中的应用,考核考生对水利工程质量事处理要求的掌握情况。 根据水利部《关于贯彻质量发展纲要、提升水利工程质量的实施意见》(水建管[2012]581号),水利工程质量事故处理必须坚持“事故原因不查清楚不放过、主要事故责任者和职工未受到教育不放过、补救和防范措施不落实不放过、责任人员未受到处理不放过”的四不放过原则。

猜你喜欢

发表评论
更多 网友评论0 条评论)
暂无评论
错误啦!

错误信息

  • 消息: [程序异常] : MISCONF Redis is configured to save RDB snapshots, but it's currently unable to persist to disk. Commands that may modify the data set are disabled, because this instance is configured to report errors during writes if RDB snapshotting fails (stop-writes-on-bgsave-error option). Please check the Redis logs for details about the RDB error.
  • 文件: /twcms/kongphp/cache/cache_redis.class.php
  • 位置: 第 85 行
    <?php echo 'KongPHP, Road to Jane.'; ?>