某平原区拦河闸工程,设计流量860m3/s,校核流量1050m3/s,闸室结构如下图所示。本工程施工采用全段围堰法导流,上、下游围堰为均质土围堰,闸基为轻...

作者: rantiku 人气: - 评论: 0
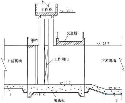
问题 某平原区拦河闸工程,设计流量860m3/s,校核流量1050m3/s,闸室结构如下图所示。本工程施工采用全段围堰法导流,上、下游围堰为均质土围堰,闸基为轻粉质砂壤土,基坑采用深井降水。施工过程中突然发现上游围堰后(基坑侧)有大面积管涌群,施工单位为防止事故发生,及时就近挖取黏性土进行封堵,随着上游水位继续上涨,封堵失败,围堰决口,导致刚浇筑的闸室底板、下游消能防冲设施被冲毁,造成直接经济损失100万元。事故发生后,施工单位按“四不放过原则”,组织有关单位制定处理方案,报监理机构批准后,对事故进行了处理,处理后不影响工程正常使用,对工程使用寿命影响不大。 1.说明该拦河闸工程的等别及闸室和围堰的级别;指出图中建筑物部位1和2的名称。 2.本工程事故发生前施工单位对管涌群采取的处理措施有何不妥?并简要说明本工程管涌的抢护原则和正确抢护措施。 3.根据《水利工程质量事故处理暂行规定》,水利工程质量事故一般分为哪几类?并指出本工程质量事故类别。 4.根据水利部《关于贯彻质量发展纲要、提升水利工程质量的实施意见》(水建管[2012]581号),说明背景材料中“四不放过原则”的具体内容。
选项
答案
解析 1.工程等别为Ⅱ等;闸室级别为2级;围堰级别为4级。图中:1为铺盖、2为消力池。 2.施工单位采用黏性土对管涌群进行封堵不妥。 管涌的抢护原则是:制止涌水带砂,而留有渗水出路。 本工程的正确抢护措施:用透水性较好的砂、石、土工织物、梢料等反滤材料在管涌群出口处进行压盖。 3.水利工程质量事故分为一般质量事故、较大质量事故、重大质量事故、特大质量事故。本工程质量事故类别为较大质量事故。 4.事故原因不查清楚不放过,主要事故责任者和职工未受到教育不放过,补救和防范措施不落实不放过,责任人员未受到处理不放过。 【试题解析】? 【解析】1.此题考察考生对水利水电工程等级划分及水闸工程布置的掌握情况。 根据《水利水电工程等级划分及洪水标准》SL252-2000和《水闸设计规范》SL265-2001的规定,本工程等别为Ⅱ等;闸室级别为2级;围堰级别为4级。图中铺盖、消力池为水闸工程布置的常识。 2.此题考察水利工程险情处理的有关要求,考核考生对管涌处理的掌握情况。上述管涌的抢护原则和抢护措施是水利工程防汛抢险的一般常识。 3.此题考察水利工程质量事故处理管理规定在水利工程建设中的应用,考核考生对水利工程质量事故分类的掌握情况。 根据《水利工程质量事故处理暂行规定》,工程质量事故按直接经济损失的大小,检查、处理事故对工期的影响时间长短和对工程正常使用的影响,分为一般质量事故、较大质量事故、重大质量事故、特大质量事故。其中: 一般质量事故指对工程造成一定经济损失,经处理后不影响正常使用并不影响使用寿命的事故。 较大质量事故指对工程造成较大经济损失或延误较短工期,经处理后不影响正常使用但对工程使用寿命有一定影响的事故。 重大质量事故指对工程造成重大经济损失或较长时间延误工期,经处理后不影响正常使用但对工程使用寿命有较大影响的事故。 特大质量事故指对工程造成特大经济损失或长时间延误工期,经处理仍对正常使用和工程使用寿命有较大影响的事故。 本工程刚浇筑的闸室底板、下游消能防冲设施被冲毁,造成直接经济损失100万元。事故处理后不影响工程正常使用,对工程使用寿命影响不大。事故等级应定为较大质量事故。 4.此题考察水利工程质量事故处理管理规定在水利工程建设中的应用,考核考生对水利工程质量事处理要求的掌握情况。 根据水利部《关于贯彻质量发展纲要、提升水利工程质量的实施意见》(水建管[2012]581号),水利工程质量事故处理必须坚持“事故原因不查清楚不放过、主要事故责任者和职工未受到教育不放过、补救和防范措施不落实不放过、责任人员未受到处理不放过”的四不放过原则。

猜你喜欢

发表评论
更多 网友评论0 条评论)
暂无评论

访问排行

Copyright © 2012-2014 恰考网 Inc. 保留所有权利。 Powered by tikuer.com

页面耗时0.0363秒, 内存占用1.04 MB, Cache:redis,访问数据库18次