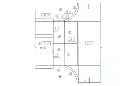
某水闸共3孔,闸室每孔净宽8.0m,主要工程内容包括:①闸底板和闸墩,②消力池,③消力池段翼墙,④斜坡段翼墙,⑤斜坡段护底,⑥翼墙后填土等。闸室底板与斜坡...

作者: rantiku 人气: - 评论: 0
问题 某水闸共3孔,闸室每孔净宽8.0m,主要工程内容包括:①闸底板和闸墩,②消力池,③消力池段翼墙,④斜坡段翼墙,⑤斜坡段护底,⑥翼墙后填土等。闸室底板与斜坡段底板混凝土分缝之间设金属止水片。其工程平面布置示意图如下。 施工单位为检验工程质量,在工地建立了试验室。施工过程中,施工单位有关人员在施工技术负责人的监督下,对闸底板和闸墩等部位的混凝土进行了见证取样,所取试样在工地试验室进行了试验,同时施工单位有关人员在监理单位的监督下,另取一份试件作为平行检测试样,并在工地试验室进行了试验。 分部工程完成后,项目法人主持进行了分部工程验收,并形成“分部工程验收鉴定书”,鉴定书主要内容包括开工完工日期、质量事故及缺陷处理、保留意见等。 问题: 1.请给出背景材料中主要工程内容的合理施工顺序(工程内容用序号表示)。 2.施工单位在进行闸室底板与斜坡段底板分缝部位的混凝土施工时,应注意哪些事项? 3.分别指出本工程见证取样和平行检测做法的不妥之处,并说明正确做法。 4.根据《水利水电建设工程验收规程》SL223―2008,鉴定书除背景材料中给出的主要内容外,还有哪些内容需要填写?
选项
答案
解析 1.①→③→④→⑥→②→⑤ 2.(1)在止水片高程处不得设置施工缝。 (2)浇筑混凝土时不得冲撞止水片。 (3)振捣器不得触及止水片。 (4)嵌固止水片的模板应适当推迟拆模时间。 3.在施工技术负责人的监督下见证取样,试样送工地试验室试验不妥。见证取样应在监理单位或项目法人监督下取样,试样送到具有相应资质等级的工程质量检测机构进行试验。 平行检测由施工单位有关人员取样,试样送工地试验室试验不妥。平行检测应由监理单位在承包人自行检测的同时独立取样,试样送到具有国家规定的资质条件的检测机构进行试验。 4.(1)拟验工程质量评定意见; (2)存在问题及处理意见; (3)验收结论。 1.一般水闸工程的施工内容有:导流工程、基坑开挖、基础处理、混凝土工程、砌石工程、回填土工程、闸门与启闭机安装、围堰拆除等。水闸混凝土工程的施工应以闸室为中心,按照“先深后浅,先重后轻、先高后低、先主后次”的原则进行。 [解答分析]这是一道水利工程施工技术管理方面的题,考核考生对水闸组成和施工组织的掌握。 2.为了适应地基的不均匀沉降和伸缩变形,在水闸、涵洞等水工结构设计中均设置温度缝与沉陷缝,并常用沉陷缝取代温度缝。 止水缝部位混凝土浇筑至关重要,施工时注意事项包括: (1)水平止水片应在浇筑层的中间,在止水片高程处,不得设置施工缝。 (2)浇筑混凝土时,不得冲撞止水片,当混凝土将要淹没止水片时,应再次清除其表面污垢。 (3)振捣器不得触及止水片。 (4)嵌固止水片的模板应适当推迟拆模时间。 [解答分析]本题考核考生对水工建筑物分缝与止水处的混凝土施工要求。 3.水利工程施工质量检测的总体要求是,严格开展施工自检、监理平行检测,积极推进第三方检测。 见证取样和平行检测是水利工程施工过程中,监理机构对质量控制采取的主要方法和手段。对涉及工程结构安全的试块、试件及有关材料,应实行见证取样。见证取样是指在监理单位或项目法人监督下,由施工单位有关人员现场取样,并送到具有相应资质等级的工程质量检测机构所进行的检测。见证取样资料由施工单位制备,记录应真实齐全,参与见证取样人员应在相关文件上签字。 平行检测是指监理机构为核验承包人的检测结果,在承包人自行检测的同时独立进行检测。监理单位应根据结合平行检测和跟踪检测结果等,复核工序施工质量检验项目是否符合质量标准的要求。平行检测试样应送到具有国家规定的资质条件的检测机构进行试验。《水利工程建设项目施工监理规范》对监理机构平行检测的检测数量进行了规定,混凝土试样不应少于承包人检测数量的3%,重要部位每种强度等级的混凝土最少取样1组;土方试样不应少于承包人检测数量的5%,重要部位至少取样3组。 [解答分析]本题考核考生在水利工程施工过程中对监理机构检测方法和手段的掌握。 4.分部工程验收的成果性文件是分部工程验收鉴定书。 主要内容有: (1)开工完工日期。系指本分部工程开工及完工日期,具体到日。 (2)质量事故及缺陷处理。达不到《水利工程质量事故处理暂行规定》(水利部第9号令)所规定分类标准下限的,均为质量缺陷。对于质量事故的处理程序应符合第9号令,对于质量缺陷按有关规范及合同进行处理。需说明本分部工程是否存在上述问题,如果存在应如何处理。 (3)拟验工程质量评定意见。主要填写本分部单元工程个数、主要单元工程个数、单元工程合格数和优良数以及优良品率,并应按《水利水电工程施工质量检验与评定规程》SL176-2007的要求进行质量评定。工程质量指标,主要填写有关质量方面设计指标(或规范要求的指标),施工单位自检统计结果,监理单位抽检统计结果,以及各指标之间的对比情况。 (4)存在问题及处理意见。主要填写有关本分部工程质量方面是否存在问题,以及如何处理,处理意见应明确存在问题的处理责任单位,完成期限以及应达到的质量标准。存在问题处理后的验收责任单位。 (5)验收结论。系填写验收的简单过程(包括验收日期、质量评定依据)和结论性意见。 (6)保留意见。系填写对验收结论的不同意见以及需特别说明与该分部工程验收有关的问题,并需持保留意见的人签字。 [解答分析]这是一道关于水利工程分部工程验收的考题,考核考生对分部工程验收鉴定书填写内容的掌握。

猜你喜欢

发表评论
更多 网友评论0 条评论)
暂无评论
错误啦!

错误信息

  • 消息: [程序异常] : MISCONF Redis is configured to save RDB snapshots, but it's currently unable to persist to disk. Commands that may modify the data set are disabled, because this instance is configured to report errors during writes if RDB snapshotting fails (stop-writes-on-bgsave-error option). Please check the Redis logs for details about the RDB error.
  • 文件: /twcms/kongphp/cache/cache_redis.class.php
  • 位置: 第 85 行
    <?php echo 'KongPHP, Road to Jane.'; ?>