发包人与承包人签订堤防加固项目的施工合同,主要内容为堤身加固和穿堤涵洞拆除重建。为保证项目按期完成,将堤身划分成2个区段组织流水施工,项目部拟定的初始施工...

作者: rantiku 人气: - 评论: 0
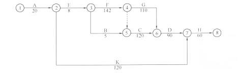
问题 发包人与承包人签订堤防加固项目的施工合同,主要内容为堤身加固和穿堤涵洞拆除重建。为保证项目按期完成,将堤身划分成2个区段组织流水施工,项目部拟定的初始施工进度计划如下图(单位:天)。 在实施中发生如下事件: 事件1:项目部在审查初始的施工进度计划时,提出了优化方案,即按先“Ⅱ堤段”、后“Ⅰ堤段”顺序组织施工,其他工作逻辑关系不变,各项工作持续时间不变,新计划已获监理单位批准并按其组织施工。 事件2:由于设计变更,“Ⅱ段堤身填筑”(F工作)推迟5天完成。 事件3:质检时发现Ⅰ段砌石存在通缝、叠砌和浮塞现象,需返工处理,故推迟3天完成。 事件4:第225天末检查时,“Ⅱ段砌石护坡”(G工作)已累计完成40%工程量,“Ⅰ段堤身填筑”(C工作)已累计完成40%工程量,“穿堤涵洞”(K工作)已累计完成60%工程量。 问题: 1.根据事件1,绘制新的施工网络计划图(工作名称用原计划中的字母代码表示),分别计算原计划与新计划的工期,确定新计划的关键线路(用工作代码表示)。 2.分别指出事件2、事件3的责任方,分析对工期的影响及可获得工期补偿的天数。 3.根据事件4,分别指出第225天末G、C、K工作已完成多少天工程量,及其对工期有何影响(假定各工作匀速施工)。
选项
答案
解析 1.新的网络计划图: 原计划工期457天,新计划工期440天。 新计划关键线路:A→E→F→C→D→H。 2.事件2中责任方为发包人,影响工期5天,可获得5天的工期补偿。 事件3的责任方为承包人,影响工期3天,不能获得工期补偿(或可获得0天的工期补偿)。 3.根据第225天末检查结果: G工作完成了44天工程量,拖期11天,总时差10天,对工期影响1天。 C工件完成了48天工程量,拖期7天,C为关键工作,对工期影响7天。 K工作完成了72天工程量,拖期133天,总时差240天,对工期无影响。 1.本小题首先考核网络计划的绘制,因本例中只是按先“Ⅱ堤段”、后“Ⅰ堤段”改变施工顺序,所以网络图只需要把“Ⅱ堤段”和“Ⅰ堤段”对应的工作对调即可。然后是计算工期,找关键线路。对于原网络图,可采用标号法即可。对于优化后网络图,因为牵涉到第2小问中需要分析工作延误对于工期的影响,按照时间参数计算的方法,直至计算出工作的总时差。 [解答分析]本小题是进度方面的,主要考核网络计划绘制,网络计划的计算,关键线路与工期确定。 2.事件2中,为设计变更造成F工作推迟5天,是发包方责任;而且该工作为关键工作,可见影响工期5天,承包商可获得5天的工期补偿。 事件3中,D工作因施工质量不符合设计规范要求而返工延误3天,是承包商自身责任;D工作是关键工作,可见影响工期3天;因为是承包人的责任,故不能获得工期补偿。 [解答分析]本小题是合同管理方面的,主要考核网络计划实施中,工作延误对工期的影响以及合同责任、工期索赔。 3.第225天末检查时,“Ⅱ段砌石护坡”(G工作)已累计完成40%工程量,G工作完成了110*40%=44天;“Ⅰ段堤身填筑”(C工作)已累计完成40%工程量,C工作完成了120*40%=48天;“穿堤涵洞”(K工作)已累计完成60%工程量,K工作完成了120*60%=72天。 按计划进行,第225天末: G工作最早开始时间为170天,应完成55天工程量(225-170=55天);故拖期11天(55-44=11天);G工作为非关键工作,总时差为10天,故影响工期1天。 C工作最早开始时间为170天,应完成55天工程量;故拖期7天;C工作为关键工作,故影响工期7天。 K最早开工时间为20天,225-20=205天,大于K工作持续时间,故工作应全部完成。205-72=133天。K工作的总时差为240天,故不影响工期。 [解答分析]本小题是进度方面的,主要考核工作进展表示方法以及工作延误对工期的影响。

猜你喜欢

发表评论
更多 网友评论0 条评论)
暂无评论

访问排行

Copyright © 2012-2014 恰考网 Inc. 保留所有权利。 Powered by tikuer.com

页面耗时0.0512秒, 内存占用1.03 MB, Cache:redis,访问数据库13次