Ⅲ.电气工程 工程背景资料如下: 1.图6.Ⅲ所示为某标准厂房防雷接地平面图 2.防雷接地工程的相关定额见下表: 3.该...

作者: rantiku 人气: - 评论: 0
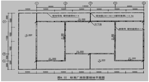
问题 Ⅲ.电气工程 工程背景资料如下: 1.图6.Ⅲ所示为某标准厂房防雷接地平面图 2.防雷接地工程的相关定额见下表: 3.该工程的管理费和利润分别按人工费的30%和10%计算,人工单价为95 元/工日。 4.相关分部分项工程量清单项目统一编码见下表: 说明: 1.室内外地坪高差0.60m,不考虑墙厚,也不考虑引下线与避雷网,引下线与断接卡子的连接耗量。 2.避雷网采用25*4 镀锌扁钢,沿屋顶女儿墙敷设。 3.引下线利用建筑物主内柱筋引下,每一处引下线均需焊接2 根柱筋,每一引下线离地坪1.8m 处设一断接卡子。 4.户外接地母线均采用40*4 镀锌扁钢,埋深0.7m。 5.接地极采用L50*50*5 镀锌角钢制作,L=2.5m。 6.接地电阻要求小于10 欧姆。 7.图中标高单位以m 计,其余均为mm。 问题: 1.按照背景资料1?4 和图6.Ⅲ所示内容,根据《建设工程工程量清单计价规范》(GB 50500-2013)和《通用安装工程工程量计算规范》(GB 50856—2013)的规定,分别列式计算避雷网、避雷引下钱(利用建筑物主筋作引下线不计附加长度)和接地母线的工程量,将计算式与结果填写在答题卡上,并在答题卡表6.Ⅲ.1“分部分项工程和单价措施项目清单与计价表”中计算和编制各分部分项工程的综合单价与合价。 2.设定该工程“避雷引下线”项目的清单工程量为120m,其余条件均不变,根据背景材料2 中的相关定额,在答题卡6.Ⅲ.2“综合单价分析表”中,计算该项目的综合单价。(“数量”栏保留三位小数,其余均保留两位小数)
选项
答案
解析 问题1: 1.避雷网(25*4 镀锌扁钢)工程量计算: [(8+14+8)*2+(11.5+2.5)*4+(21-18)*4]*(1+3.9%)=132.99(m) 或:﹛[(11.5+2.5)*2+8*2]*2+14*2+(21-18)*4﹜*(1+3.9%)=132.99(m) 2.避雷引下线(利用主钢筋)工程量计算: (21-1.8+0.6)*4+(18-1.8+0.6)*2=79.2+33.6=112.8(m) 3.接地母线(埋地40*4 镀锌扁钢)工程量计算: [5*18+(3+0.7+1.8)*5+(3+2.5+0.7+1.8)]*(1+3.9%)=130.39(m) 或:[5*18+3*6+2.5+(1.8+0.7)*6]*(1+3.9%)=130.39(m) 表6.Ⅲ.1 分部分项目工程和单价措施项目清单与计价表 工程名称:标准厂房标段:防雷接地工程 问题2: 表6.Ⅲ.2 综合单价分析表 答案:工程名称:标准厂房标段:防雷接地工程

猜你喜欢

发表评论
更多 网友评论0 条评论)
暂无评论

访问排行

Copyright © 2012-2014 恰考网 Inc. 保留所有权利。 Powered by tikuer.com

页面耗时0.0486秒, 内存占用1.04 MB, Cache:redis,访问数据库19次