C--I.土建工程 背景资料: 某小高层住宅楼建筑部分设计如图3-24 所示,共12 层,每层层高均为3m,电梯机房与楼梯间部分凸出屋面。 墙...

作者: rantiku 人气: - 评论: 0
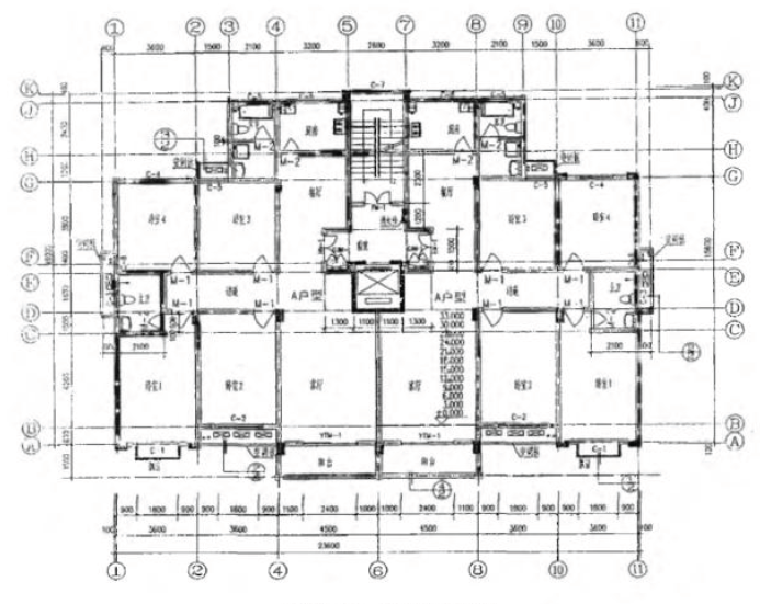
问题 C--I.土建工程 背景资料: 某小高层住宅楼建筑部分设计如图3-24 所示,共12 层,每层层高均为3m,电梯机房与楼梯间部分凸出屋面。 墙体除注明者外均为200mm 厚加气混凝土墙,轴线位于墙中。外墙采用50mm 厚聚苯板保温。楼面做法为20mm 厚水泥砂浆抹面压光。楼层钢筋混凝土板厚100mm,内墙做法为20mm 厚混合砂浆抹面压光。为简化计算,首层建筑面积按标准层建筑面积计算。阳台为全封闭式,⑤和⑦轴上混凝土柱超过墙体宽度部分建筑面积忽略不计,门窗洞口尺寸见表3-101,工程做法见表3-102。 问题: 1.依据《建筑工程建筑面积计算规范》(GB/T50353—2005)的规定,计算小高层住宅楼的建筑面积。将计算过程、计量单位及计算结果填入“建筑面积计算表”。 2.依据《建设工程工程量清单计价规范》附录B 的工程量计算规则,计算小高层住宅楼二层卧室1、卧室2、主卫的楼面工程量以及墙面工程量,将计算过程、计量单位及计算结果按要求填入“分部分项工程量清单”。 3.结合图纸及表3-102“工程做法”,进行分部分项工程量清单的项目特征描述,将描述和分项计量单位填入答题纸“分部分项工程量清单”。 (注:计算结果均保留2 位小数。)
选项
答案
解析 问题1: 【解题要点】 计算建筑面积时,以外墙保温隔热层外边线为界,筘除空调室外机搁板的面积。本题 中,阳台为全封闭式,应计算全面积。计算时注意不重不漏,按照一定的顺序进行计算。 【解题过程】 问题2: 【解题要点】 分别计算卧室1、卧室2、主卫的楼地面和墙面抹灰的工程量,计算时注意楼地面的工程量为墙间的净面积,轴线尺寸部分需要减去半墙的厚度100mm。 计算墙面抹灰工程量时利用长度乘以高度得到面积,注意高度的计算=3.0-0.1=2.9m,扣减门窗的面积。 【解题过程】 问题3: 【解题要点】 注意项目特征的描述要完整,对工程做法表中的内容进行补充,计量单位要正确。 【解题过程】

猜你喜欢

发表评论
更多 网友评论0 条评论)
暂无评论

访问排行

Copyright © 2012-2014 恰考网 Inc. 保留所有权利。 Powered by tikuer.com

页面耗时0.0569秒, 内存占用1.04 MB, Cache:redis,访问数据库30次