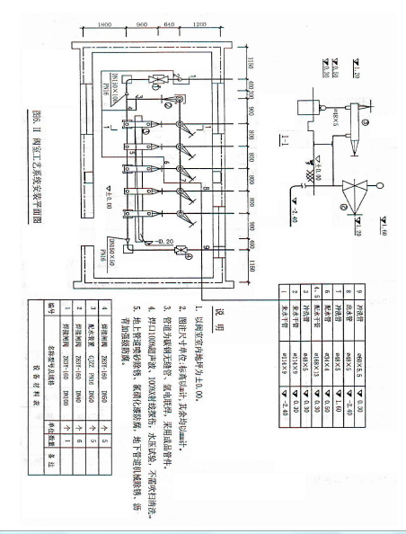
Ⅱ. 管道和设备工程 某工程背景资料如下: 1.图6.Ⅱ为某配水阀室工艺管道系统安装图。 2.管道工程的相关定额见下表 企业管...

作者: rantiku 人气: - 评论: 0
问题 Ⅱ. 管道和设备工程 某工程背景资料如下: 1.图6.Ⅱ为某配水阀室工艺管道系统安装图。 2.管道工程的相关定额见下表 企业管理费和利润分别是人工费的85%和35%。 3.按照《建设工程工程量清单计价规范》(GB50500—2013)的相关规定及统一编码,完成下列问题。 问题: 1.按照图6.Ⅱ,列式计算Ф168*13、Ф114*9、Ф60*5.5、Ф48*5、Ф34*4 管道(区 分地上、地下敷设方式)、Ф168*13、Ф114*9 管件和管道防腐的清单工程量(计量范围以图示墙轴线为界)。(保留两位小数) 2.按照图6.Ⅱ中所列的阀门数量,及图6.Ⅱ中规定的管道安装技术要求,在答题纸上表6.Ⅱ.1“分部分项工程量清单与计价表”中,编制配水阀室的分部分项工程量清单项目。 3.按照背景条件2,在答题纸上表6.Ⅱ.2“工程量清单综合单价分析表”中,编制Ф168* 13 管道(单重49.67kg/m)工程量清单综合单价。 (数量栏保留三位小数,其余保留两位小数)
选项
答案
解析 问题1. (1)碳钢无缝钢管的工程量计算式: Ф168*13:地上敷设:0.3+0.9+0.8*4+0.9=5.3(m) Ф114*9:5.9m 地下敷设:2.4+1.2=3.6(m) 地上敷设:0.3+0.64+0.96+0.4=2.3(m) Ф60*5.5:3.2m Ф48*5:33m 地下敷设:18m 地上敷设:15m Ф34*4:8.5m (2)碳钢成品管件的工程量计算式: DN100(或Ф114):弯头1+1+1=3 个 DN150(或Ф168): DN150*100(或Ф168*114)大小头1 个 DN150*50(或Ф168*60)大小头1 个 DN150*40(或Ф168*48)三通1+5=6 个 小计:1+1+6=8 个 (3)环氧煤沥青防腐蚀的工程量计算式: 3.14*(0.114*3.6+0.048*18)=4.002 ㎡ (4)管道防腐蚀的工程量计算式: 3.14*(0.168*5.3+0.114*2.3+0.06*3.2+0.048*15+0.034*8.5)=2.354 ㎡ 问题2. 问题3.

猜你喜欢

发表评论
更多 网友评论0 条评论)
暂无评论

访问排行

Copyright © 2012-2014 恰考网 Inc. 保留所有权利。 Powered by tikuer.com

页面耗时0.0520秒, 内存占用1.04 MB, Cache:redis,访问数据库20次