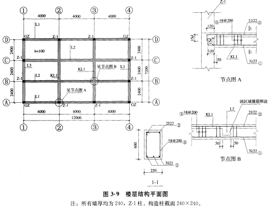
某工程楼面如图3-9“楼层结构平面图”所示。梁纵向钢筋通长布置,8m长一个搭接,搭接长度1.2Lt,Lt为40d。梁箍筋弯钩长度按外包尺寸每个弯钩加11....

作者: rantiku 人气: - 评论: 0
问题 某工程楼面如图3-9“楼层结构平面图”所示。梁纵向钢筋通长布置,8m长一个搭接,搭接长度1.2Lt,Lt为40d。梁箍筋弯钩长度按外包尺寸每个弯钩加11.9d计算。梁混凝土保护层25mm。 问题: 1.计算KL1梁钢筋的重量,并将相关内容填入表329“钢筋计算表”相应栏目中。 2.依据《建设工程工程量清单计价规范》,将项目编码、综合单价、合价及综合单价计算过程填入表3—30“分部分项工程量清单计价表”的相应栏目中。
选项
答案
解析 问题1: 问题2:

猜你喜欢

发表评论
更多 网友评论0 条评论)
暂无评论

访问排行

Copyright © 2012-2014 恰考网 Inc. 保留所有权利。 Powered by tikuer.com

页面耗时0.0393秒, 内存占用1.03 MB, Cache:redis,访问数据库19次