本试题分三个专业(I 土建工程、II 管道和设备工程、III 电气和自动化控制工程),请任选其中一题作答,若选作多题,按所答的第一题(卷面顺序)计分。 ...

作者: tihaiku 人气: - 评论: 0
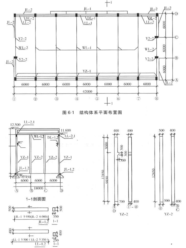
问题 本试题分三个专业(I 土建工程、II 管道和设备工程、III 电气和自动化控制工程),请任选其中一题作答,若选作多题,按所答的第一题(卷面顺序)计分。 (主观题) I.土建工程 背景资料: 某拟建项目机修车间,厂房设计方案采用预制钢筋混凝土排架结构。其上部结构系统如图6-I所示。结构体系中现场预制标准构件和非标准构件的混凝土强度等级、设计控制参考钢筋含量等见表6-I所示: 表6-I现场预制构件一览表 另经查阅国家标准图集,所选用的薄腹屋面梁混凝士用量为3.l1m3/根(厂房中间与两端山墙处屋面梁的混凝土用量相同,仅预埋铁件下同),所选用T型吊车梁混凝土用量,车间两端部为1.13m3/根,其余为1.08m3/根。 【问题】 1.根据上述条件,接《房屋建筑与装饰工程工程量计算规范》(GB50854-2013)的计算规则,在答题纸表6-I-1中,列式计算该机修车间上部结构预制混凝土柱、梁工程量及根据设计提供的控制参考钢筋含量计算相关钢筋工程量。 2.利用问题1的计算结果和以下相关数据,按《建设工程工程量清单计价规范》(GB50500-2013)、《房屋建筑与装饰工程工程量计算规范》(GB50854-2013)的要求,在答题纸6-1-2中,编制该机修车间上部结构分部分项工程和单价措施项目清单与计价表。已知相关数据为: (1)预制混凝土矩形柱的清单编码为010509001,本车间预制混凝土柱单件体积<3.5m3,就近插入基础杯口,人材机合计513.71元/m3; (2)预制混凝土基础梁的清单编码为010510001,本车间基础梁就近地面安装,单件体积<1.2m3,人材机合计402.98元/m3; (3)预制混凝土柱顶连系梁的清单编码为010510001,本车间连系梁单件体积<0.6m3,安装高度<12m,人材机合计423.21元/m3; (4)预制混凝土T型吊车梁的清单编码为010510002,本车间T型吊车梁单件体积<1.2m3,安装高度<9.5m,人材机合计530.38元/m3; (5)预制混凝土薄腹屋面梁的清单编码为010511003,本车间薄腹屋面梁单件体积<3.2m3,安装高度13m,人材机合计561.35元/m3; (6)预制混凝土构件钢筋的清单编码为010515002,本车间所用钢筋直径为6-25mm,人材机合计6018.70元/t。以上项目管理费均以人材机为基数按10%计算,利润均以人材机和管理费合计为基数按5%计算。 3利用以下相关数据,在答题纸上表6-I-3中,编制该机修车间土建单位工程招标控制价汇总表。已知相关数据为: (1)一般土建分部分项工程费用785000.00元; (2)措施项目费用62800.00元,其中安全文明施工费26500.00元; (3)其他项目费用为屋顶防水专业分包暂估70000.00元; (4)规费以分部分项工程、措施项目、其他项目之和为基数计取,综合费率为5.28%; (5)税率为3.477%。 (注:计算结果保留两位小数即可)
选项
答案
解析 1.表6-I-1工程量计算表 2.表6-I-2分部分项和单价措施项目清单与计价表 3.表6-I-3单位工程招标控制价汇总表 解析 本案例主要考查按照《建设工程工程量计算规范》(GB50854-2013)的要求,计算预制混凝土和钢筋工程量,以及计算分部分项工程和单价措施项目清单与计价表和单位工程招标控制价汇总表。

相关内容:试题,三个,专业,土建工程,管道,设备,工程,自动化,控制,任选,一题,若选,作多,按所,卷面,顺序,计分

猜你喜欢

发表评论
更多 网友评论0 条评论)
暂无评论

访问排行

Copyright © 2012-2014 恰考网 Inc. 保留所有权利。 Powered by tikuer.com

页面耗时0.0461秒, 内存占用1.05 MB, Cache:redis,访问数据库20次