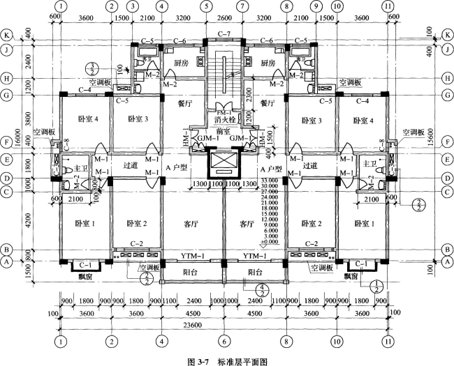
一、某小高层住宅楼建筑部分设计如图3—7和图3—8所示,共12层,每层层高均为3m,电梯机房与楼梯间部分凸出屋面。墙体除注明者外均为200mm厚加气混凝土...

作者: tihaiku 人气: - 评论: 0
问题 一、某小高层住宅楼建筑部分设计如图3—7和图3—8所示,共12层,每层层高均为3m,电梯机房与楼梯间部分凸出屋面。墙体除注明者外均为200mm厚加气混凝土墙,轴线位于墙中。 外墙采用50mm厚聚苯板保温。楼面做法为20mm厚水泥砂浆抹面压光。楼层钢筋混凝土板厚100mm,内墙做法为20mm厚混合砂浆抹面压光。为简化计算首层建筑面积按标准层建筑面积计算。阳台为全封闭阳台,⑤和⑦轴上混凝土柱超过墙体宽度部分建筑面积忽略不计,门窗洞口尺寸见表3—24,工程做法见表3—25。 问题: 1.计算小高层住宅楼的建筑面积,将计算过程、计量单位及计算结果填入表3—26“建筑面积计算”。 2.计算小高层住宅楼二层卧室1、卧室2、主卫的楼面工程量以及墙面工程量,将计算过程、计量单位及计算结果按要求填入表3—27“分部分项工程量计算”。 3.结合图纸及表3—25“工程做法”进行分部分项工程量清单的项目特征描述,将描述和分项计量单位填入表3—28“分部分项工程量清单”。 (计算结果均保留2位小数)
选项
答案
解析 问题1: 问题2: 问题3:

相关内容:某小,高层,住宅楼,建筑,部分,设计,如图,和图,8所示,层高,电梯,机房,楼梯,屋面,墙体,者外,混凝土

猜你喜欢

发表评论
更多 网友评论0 条评论)
暂无评论

访问排行

Copyright © 2012-2014 恰考网 Inc. 保留所有权利。 Powered by tikuer.com

页面耗时0.0468秒, 内存占用1.04 MB, Cache:redis,访问数据库20次