案例分析五 【背景资料】 某工程采用工程量清单招标,确定某承包商中标。甲乙双方签订的承包合同包括的分部分项工程量清单工程量和投标综合单价见表5.1。工...

作者: tihaiku 人气: - 评论: 0
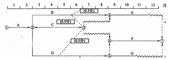
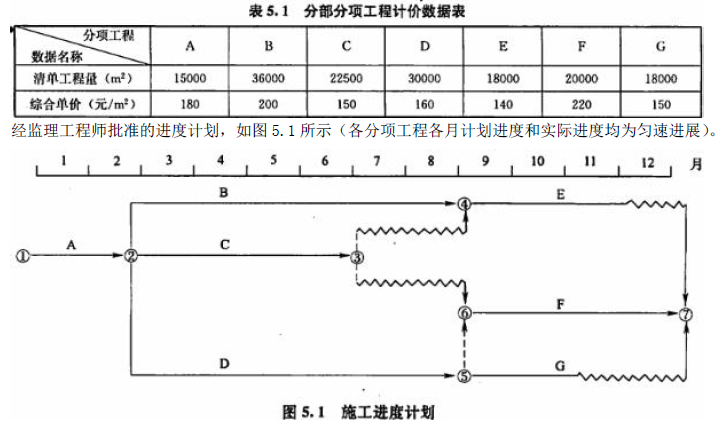
问题 案例分析五 【背景资料】 某工程采用工程量清单招标,确定某承包商中标。甲乙双方签订的承包合同包括的分部分项工程量清单工程量和投标综合单价见表5.1。工程合同工期12 个月,措施费84 万元,其他项目费100 万元,规费费率为分部分项工程费、措施费、其他项目费之和的4%,税金率为3.35%。有关工程付款的条款如下: 1.工程预付款为合同价的20%,在合同签订后15 日内一次支付,措施费在前6 个月的工程进度款中均匀支付。 2.工程进度款每三个月结算一次。 3.在各次工程款中按5%的比例扣留工程质量保修金。 施工期间第4~6 月分项工程结算价格综合调整系数为1.1。 第6 个月末检查工程进度时,B 工作完成计划进度的1/2,C 工作刚好完成,D 工作完成计划进度的1/3。 问题: 1.计算各分项工程的分部分项工程费、每月完成的分部分项工程费,把计算结果填入纸表5.1 中,并列式计算工程预付款。 2.根据第6 个月末检查结果,在答题纸图5.1 上绘制前锋线,并分析第6 个月末B、C、D 三项工作的进度偏差,如果后6 个月按原计划进行,分析说明B、D 工作对工期的影响影响。 3.若承包方决定在第6 个月后调整进度计划以确保实现合同工期,应如何调整(有关分项工程可压缩的工期和相应增加的费用见表5.2)?说明理由。 际进度情况结算,第4~6 月应签发工程款为多少万元(假设期间无其他项目费发生,A 工作按批准进度计划完成)? (计算结果均保留两位小数)
选项
答案
解析 问题1: 表5.1 分项工程费表 工程预付款:(2769.5+84+100)×(1+4%)×(1+3.35%)×20%(0.5 分)=3174.54×0.2=634.91(万元) 问题2: 绘制前锋线: 第6 月末,B 工作被推迟1 个月(或B 工作进度偏差为120 万元)(0.5 分),C 工作进度正常(或C 工作进度偏差为0)(0.5 分),D 工作被推迟2 个月(或D 工作进度偏差为160 万元)(0.5 分)。 如果按原计划执行,B 工作不会影响工期(0.5 分),虽然B 工作延误1 个月,但其总时差为1 个月(或但未超过 总时差)(0.5 分);D 工作将导致工程工期延误2 个月(0.5 分),因为D 工作是关键线路上的关键工作(或D 工作的总时差为0)(0.5 分)。 问题3:(3.5 分) (1)调整方案:压缩F 工作(0.5 分)2 个月(0.5 分)。 (2)因为,从第7 月开始,项目关键线路为D-F(0.5 分),应该压缩D、F 工作总持续时间2 个月才能按原工期完成(1 分),而F 工作可压缩2 个月且相应增加的费用最少(1 分)。 问题4:(7.5 分) 第4 至6 月完成各工作的工程量价款: B 工作3 月~6 月(4 个月)完成了B 工作总量的1/2,因此B 工作4 月~6 月完成工程量价款为:720×1/2×3/4=270.00(万元)(1.5 分) C 工作3 月~6 月(4 个月)完成了C 工作的全部工程,因此C 工作4 月~6 月完成的工程量价款为:84.38×3=253.14(万元)(或337.5×3/4=253.13 万元)(0.5 分) D 工作3 月~6 月(4 个月)完成了D 工作全部工程的1/3,因此D 工作4 月~6 月完成的工程量价款为:480×1/3×3/4=120.00(万元)(1.5 分) 第4 至6 月应签发工程款: [(270+253.14+120)×1.1(1 分)+84×3/6(1 分)] ×(1+4%)×(1+3.35%)(1 分)×0.95(0.5 分)=765.27(万元)(0.5 分)

相关内容:案例分析,背景,资料,工程,工程量,清单,招标,承包商,合同,分部,分项,综合,单价

猜你喜欢

发表评论
更多 网友评论0 条评论)
暂无评论

访问排行

Copyright © 2012-2014 恰考网 Inc. 保留所有权利。 Powered by tikuer.com

页面耗时0.0570秒, 内存占用1.04 MB, Cache:redis,访问数据库13次