某钢筋混凝土框架结构建筑,总层数三层,首层建筑平面图、柱及基础梁布置图、框架梁结构图、独立柱基础图见图6-Ⅰ-1、6-Ⅰ-2、6-Ⅰ-3、6-Ⅰ-4所示。...

作者: tihaiku 人气: - 评论: 0
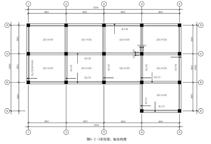
问题 某钢筋混凝土框架结构建筑,总层数三层,首层建筑平面图、柱及基础梁布置图、框架梁结构图、独立柱基础图见图6-Ⅰ-1、6-Ⅰ-2、6-Ⅰ-3、6-Ⅰ-4所示。首层板顶结构标高为3.6m,外墙为240mm厚空心砖填充墙,M7.5混合砂浆砌筑。M为2000mm×3000mm的塑钢平开门;C为2400mm×1500mm的铝合金推拉窗;窗台高600mm。窗洞口上设钢筋混凝土过梁,截面为240mm×180mm,过梁两端各伸出洞边250mm。梁、板、柱的混凝土均采用C30砼,垫层采用C10砼。水泥砂浆地面。内墙面20mm厚1:2.5水泥砂浆抹面。天棚吊顶为轻钢龙骨矿棉板平面天棚,U型轻钢龙骨中距为450mm×450mm,面层为矿棉吸声板,吊顶底距离地面2.8m。 问题: 1.依据《房屋建筑与装饰工程计量规范》(GB500854-2013)的要求计算建筑物砼垫层、独立基础、基础梁、以及首层柱、过梁、板、地面、天棚的工程量。将计算过程及结果填入答题纸相应位置。 2.根据表6.Ⅰ.1现浇混凝土梁定额消耗量、表6.Ⅰ.2各种资源市场价格和管理费、利润及风险费率标准(管理费费率为人、材、机费用之和的12%,利润及风险费率为人、材、机、管理费用之和的4.5%。),编制KL1现浇混凝土梁(工程量清单项目编码010503002)的工程量清单综合单价分析表,见表6.Ⅰ.3。
选项
答案
解析 问题1: (1)垫层:2×2×0.1×17=6.8m3 (2)独立基础:(1.8×1.8×0.4+1×1×0.4)×17=28.83 m3 (3)基础梁:0.25×0.5×(4.8-0.4)[A轴]+0.25×0.5×(19.2-0.4×4)×3[BCD轴]+0.25×0.5×(7.2-0.4×2)×3[①②③轴]+0.25×0.5×(10.8-0.4×3)×2[④⑤轴]=11.95 m3 (4)柱:0.4×0.4×(3.6+2-0.8)×17=8.16 m3 (5)过梁:0.24×0.18×(2.4+0.25×2)×10=1.25 m3 (6)楼板:(4.8-0.1-0.15)×(3.6-0.1-0.15)×0.12×3 +(4.8-0.15×2)×(3.6-0.1-0.15)×0.12×4+(4.8-0.1-0.15)×(3.6-0.15×2)×0.12+(4.8-0.1-0.1)×(3.6-0.1-0.15)×0.12=16.37 m3 (7)整体地面: (19.6-0.24×2)×(7.6-0.24×2)+3.6×(4.8+0.4-0.24×2)=153.99㎡ (8)吊顶天棚: (19.6-0.24×2)×(7.6-0.24×2)+3.6×(4.8+0.4-0.24×2)=153.99㎡

相关内容:钢筋混凝土,框架结构,建筑,平面图,基础,梁布置,框架,结构图,立柱,-4所示

猜你喜欢

发表评论
更多 网友评论0 条评论)
暂无评论

访问排行

Copyright © 2012-2014 恰考网 Inc. 保留所有权利。 Powered by tikuer.com

页面耗时0.0689秒, 内存占用1.05 MB, Cache:redis,访问数据库20次