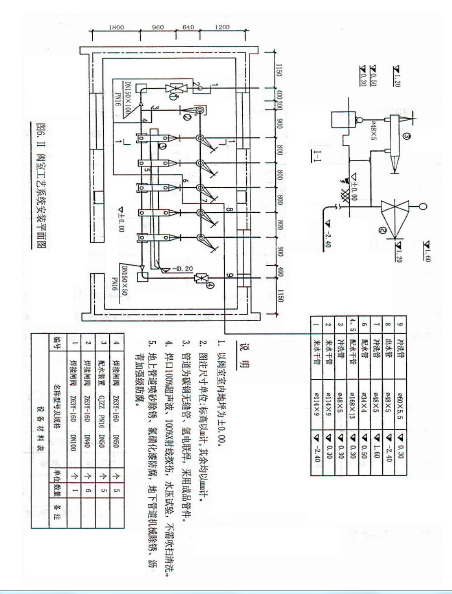
Ⅱ. 管道和设备工程 某工程背景资料如下: 1.图6.Ⅱ为某配水阀室工艺管道系统安装图。 2.管道工程的相关定额见下表 企业管理费...

作者: tihaiku 人气: - 评论: 0
问题 Ⅱ. 管道和设备工程 某工程背景资料如下: 1.图6.Ⅱ为某配水阀室工艺管道系统安装图。 2.管道工程的相关定额见下表 企业管理费和利润分别是人工费的85%和35%。 3.按照《建设工程工程量清单计价规范》(GB50500—2013)的相关规定及统一编码,完成下列问题。 问题: 1.按照图6.Ⅱ,列式计算Ф168×13、Ф114×9、Ф60×5.5、Ф48×5、Ф34×4 管道(区 分地上、地下敷设方式)、Ф168×13、Ф114×9 管件和管道防腐的清单工程量(计量范围以图示墙轴线为界)。(保留两位小数) 2.按照图6.Ⅱ中所列的阀门数量,及图6.Ⅱ中规定的管道安装技术要求,在答题纸上表6.Ⅱ.1“分部分项工程量清单与计价表”中,编制配水阀室的分部分项工程量清单项目。 3.按照背景条件2,在答题纸上表6.Ⅱ.2“工程量清单综合单价分析表”中,编制Ф168× 13 管道(单重49.67kg/m)工程量清单综合单价。 (数量栏保留三位小数,其余保留两位小数)
选项
答案
解析 问题1. (1)碳钢无缝钢管的工程量计算式: Ф168×13:地上敷设:0.3+0.9+0.8×4+0.9=5.3(m) Ф114×9:5.9m 地下敷设:2.4+1.2=3.6(m) 地上敷设:0.3+0.64+0.96+0.4=2.3(m) Ф60×5.5:3.2m Ф48×5:33m 地下敷设:18m 地上敷设:15m Ф34×4:8.5m (2)碳钢成品管件的工程量计算式: DN100(或Ф114):弯头1+1+1=3 个 DN150(或Ф168): DN150×100(或Ф168×114)大小头1 个 DN150×50(或Ф168×60)大小头1 个 DN150×40(或Ф168×48)三通1+5=6 个 小计:1+1+6=8 个 (3)环氧煤沥青防腐蚀的工程量计算式: 3.14×(0.114×3.6+0.048×18)=4.002 ㎡ (4)管道防腐蚀的工程量计算式: 3.14×(0.168×5.3+0.114×2.3+0.06×3.2+0.048×15+0.034×8.5)=2.354 ㎡ 问题2. 问题3.

相关内容:管道,设备,工程,背景,资料,如下,某配,水阀室,工艺,系统,相关,定额,企业,管理费

猜你喜欢

发表评论
更多 网友评论0 条评论)
暂无评论
错误啦!

错误信息

  • 消息: [程序异常] : MISCONF Redis is configured to save RDB snapshots, but it's currently unable to persist to disk. Commands that may modify the data set are disabled, because this instance is configured to report errors during writes if RDB snapshotting fails (stop-writes-on-bgsave-error option). Please check the Redis logs for details about the RDB error.
  • 文件: /twcms/kongphp/cache/cache_redis.class.php
  • 位置: 第 85 行
    <?php echo 'KongPHP, Road to Jane.'; ?>