Ⅲ.电气工程 工程背景资料如下: 1.图6.Ⅲ所示为某标准厂房防雷接地平面图 2.防雷接地工程的相关定额见下表: 3....

作者: tihaiku 人气: - 评论: 0
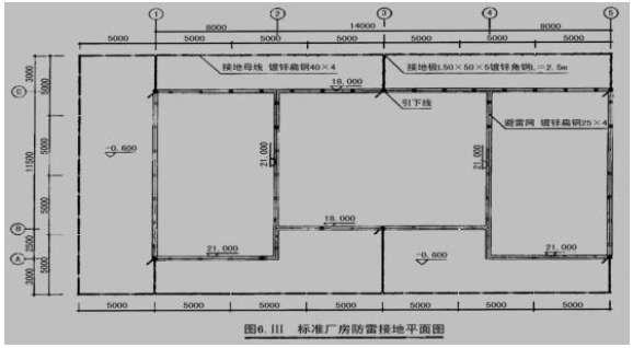
问题 Ⅲ.电气工程 工程背景资料如下: 1.图6.Ⅲ所示为某标准厂房防雷接地平面图 2.防雷接地工程的相关定额见下表: 3.该工程的管理费和利润分别按人工费的30%和10%计算,人工单价为95 元/工日。 4.相关分部分项工程量清单项目统一编码见下表: 说明: 1.室内外地坪高差0.60m,不考虑墙厚,也不考虑引下线与避雷网,引下线与断接卡子的连接耗量。 2.避雷网采用25×4 镀锌扁钢,沿屋顶女儿墙敷设。 3.引下线利用建筑物主内柱筋引下,每一处引下线均需焊接2 根柱筋,每一引下线离地坪1.8m 处设一断接卡子。 4.户外接地母线均采用40×4 镀锌扁钢,埋深0.7m。 5.接地极采用L50×50×5 镀锌角钢制作,L=2.5m。 6.接地电阻要求小于10 欧姆。 7.图中标高单位以m 计,其余均为mm。 问题: 1.按照背景资料1?4 和图6.Ⅲ所示内容,根据《建设工程工程量清单计价规范》(GB 50500-2013)和《通用安装工程工程量计算规范》(GB 50856—2013)的规定,分别列式计算避雷网、避雷引下钱(利用建筑物主筋作引下线不计附加长度)和接地母线的工程量,将计算式与结果填写在答题卡上,并在答题卡表6.Ⅲ.1“分部分项工程和单价措施项目清单与计价表”中计算和编制各分部分项工程的综合单价与合价。 2.设定该工程“避雷引下线”项目的清单工程量为120m,其余条件均不变,根据背景材料2 中的相关定额,在答题卡6.Ⅲ.2“综合单价分析表”中,计算该项目的综合单价。(“数量”栏保留三位小数,其余均保留两位小数)
选项
答案
解析 问题1: 1.避雷网(25×4 镀锌扁钢)工程量计算: [(8+14+8)×2+(11.5+2.5)×4+(21-18)×4]×(1+3.9%)=132.99(m) 或:﹛[(11.5+2.5)×2+8×2]×2+14×2+(21-18)×4﹜×(1+3.9%)=132.99(m) 2.避雷引下线(利用主钢筋)工程量计算: (21-1.8+0.6)×4+(18-1.8+0.6)×2=79.2+33.6=112.8(m) 3.接地母线(埋地40×4 镀锌扁钢)工程量计算: [5×18+(3+0.7+1.8)×5+(3+2.5+0.7+1.8)]×(1+3.9%)=130.39(m) 或:[5×18+3×6+2.5+(1.8+0.7)×6]×(1+3.9%)=130.39(m) 表6.Ⅲ.1 分部分项目工程和单价措施项目清单与计价表 工程名称:标准厂房标段:防雷接地工程 问题2: 表6.Ⅲ.2 综合单价分析表 答案:工程名称:标准厂房标段:防雷接地工程

相关内容:电气工程,工程,背景,资料,如下,标准,厂房,防雷接地,平面图,相关,定额

猜你喜欢

发表评论
更多 网友评论0 条评论)
暂无评论
错误啦!

错误信息

  • 消息: [程序异常] : MISCONF Redis is configured to save RDB snapshots, but it's currently unable to persist to disk. Commands that may modify the data set are disabled, because this instance is configured to report errors during writes if RDB snapshotting fails (stop-writes-on-bgsave-error option). Please check the Redis logs for details about the RDB error.
  • 文件: /twcms/kongphp/cache/cache_redis.class.php
  • 位置: 第 85 行
    <?php echo 'KongPHP, Road to Jane.'; ?>