我国北方某受冻区海港,实测的高、低潮位累积频率关系如表1、表2所列。 港口所在海域的理论深度基准面与黄海平均海平面相差1.0m。 该港口新建离...

作者: tihaiku 人气: - 评论: 0
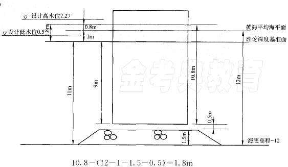
问题 我国北方某受冻区海港,实测的高、低潮位累积频率关系如表1、表2所列。 港口所在海域的理论深度基准面与黄海平均海平面相差1.0m。 该港口新建离岸沉箱重力式码头及钢管桩梁板式栈桥,预制沉箱的尺寸为长×宽×高= 12m×10m×12m,沉箱基础采用抛石明基床,基床厚1.5m。钢管粧混凝土桩帽顶标高为 +2. 3m、底标高为-0.6m。当地地形测量标定海底标高为-12. Om。预制沉箱水位变动区部位采用高抗冻性的引气混凝土,配合比为:1:0.6:1.93,水灰比为0.38,引气剂掺量为水泥用 量的0. 01%,混凝土的含气量为4. 5%。预制沉箱混凝土所用材料的相对密度如表3所列。 沉箱安放地的波浪、水流条件很复杂。沉箱下水出运压载后的稳定吃水为10.8m,乘潮安装时沉箱底距基床顶至少留有0.5m的富裕高度。 问题: (1)确定该海港码头水位变动区的上、下限的具体标高是多少? (2)沉箱水位变动区范围内每立方米混凝土的水泥用量是多少? (3)乘潮安装沉箱,潮高至少要多少才能安全进行安装? (4)在波浪、水流条件很复杂的条件下为了安全、准确地安装好沉箱,施工的要点是什么? (5)分别给出本工程钢管桩海洋大气区、浪溅区、水位变动区、水下区的防腐措施, 并说明理由。
选项
答案
解析 (1)本码头水位变动区的上限是1. 27m,下限是-0. 5m。 (2) 1kg水泥可配制混凝土的体积设为V: V=(1/3. 1) + (0. 63/2. 75) + (1. 93/2. 82)+0. 38+V·4. 5% V=1. 69L 每立方米混凝土的水泥用量是:1000/1. 69=592kg/m3 (3) (4) 1)沉箱安放后,应立即向沉箱内灌水,以保持沉箱的稳定和安全; 2)待经过1 ~2个低潮后,复测、调整位置,确认符合质量标准后,及时抛填沉箱内填料。 (5)海洋大气区为:2.27 + 1.5 = 3. 77m以上; 浪溅区底限为:2. 27 -1 = 1. 27在混凝土内; 水位变动区底限为:0. 5-1. 0=-0. 5在混凝土内; 所以本工程的钢管桩仅需要采用电化学阴极保护即可。

相关内容:我国,受冻区,海港,实测,潮位,累积,频率,关系,2所列,港口,所在,海域,理论,深度,黄海,海平面

猜你喜欢

发表评论
更多 网友评论0 条评论)
暂无评论

访问排行

Copyright © 2012-2014 恰考网 Inc. 保留所有权利。 Powered by tikuer.com

页面耗时0.0357秒, 内存占用1.04 MB, Cache:redis,访问数据库19次