下图所示网络计划,合同工期为50天。按合同规定工期提前奖励为300元/d,工期拖延则赔偿业主300元/d。(注:图中箭线上方为直接费的变化率.箭线下方为工...

作者: tihaiku 人气: - 评论: 0
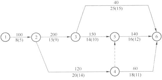
问题 下图所示网络计划,合同工期为50天。按合同规定工期提前奖励为300元/d,工期拖延则赔偿业主300元/d。(注:图中箭线上方为直接费的变化率.箭线下方为工序正常持续时间和极限持续时间,极限持续时间在括号内。) 问题: 作为施工单位,如何确定工程的工期才能使经济效益最好
选项
答案
解析 37d的方案盈利960元。

相关内容:下图,网络,计划,合同,工期,规定,奖励,300元,赔偿,业主,图中,方为,变化率,线下

猜你喜欢

发表评论
更多 网友评论0 条评论)
暂无评论

访问排行

Copyright © 2012-2014 恰考网 Inc. 保留所有权利。 Powered by tikuer.com

页面耗时0.0350秒, 内存占用1.05 MB, Cache:redis,访问数据库18次