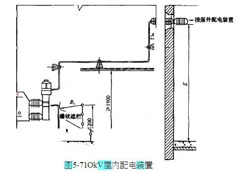
图5-7为1OkV屋内配电装置,安装地的海拔髙度不超过 1000m,请按最小电气安全净距的要求,分别回答下列问题(以mm为单位): 若将图中的栅状遮...

作者: tihaiku 人气: - 评论: 0
问题 图5-7为1OkV屋内配电装置,安装地的海拔髙度不超过 1000m,请按最小电气安全净距的要求,分别回答下列问题(以mm为单位): 若将图中的栅状遮栏改为板状遮栏时,则图5-7中所标示B1的下列值是( )。
选项 A. 130mm; B. 135mm; C. 155mm; D. 145mm,
答案 C
解析 依据GB 50056-1992《3?IlOkV高压配电装置设计规范》第5.1. 3条。

相关内容:屋内,装置,海拔,髙度,请按,电气,净距,要求,问题,为单位,栅状

猜你喜欢

发表评论
更多 网友评论0 条评论)
暂无评论

Copyright © 2012-2014 恰考网 Inc. 保留所有权利。 Powered by tikuer.com

页面耗时0.0447秒, 内存占用1.05 MB, Cache:redis,访问数据库19次