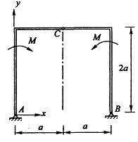
三铰拱上作用有大小相等,转向相反的二力偶,其力偶矩大小为M,如图所示。略去自重,则支座A的约束力大小为:

作者: rantiku 人气: - 评论: 0
问题 三铰拱上作用有大小相等,转向相反的二力偶,其力偶矩大小为M,如图所示。略去自重,则支座
选项 A的约束力大小为:
答案 B
解析 根据受力分析,A、B、C处的约束力均为水平方向,分别考虑AC、BC的平衡,釆用力偶的平衡方程即可。

猜你喜欢

发表评论
更多 网友评论0 条评论)
暂无评论

Copyright © 2012-2014 恰考网 Inc. 保留所有权利。 Powered by tikuer.com

页面耗时0.1006秒, 内存占用1.03 MB, Cache:redis,访问数据库20次