【背景资料】 某建设项目由A公司施工总承包,A公司征得业主同意,把变电所及照明工程分包给B公司。分包合同约定,电力变压器,配电柜等设备由A公司采购;灯具...

作者: tihaiku 人气: - 评论: 0
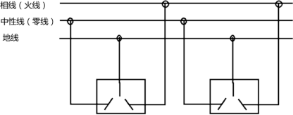
问题 【背景资料】 某建设项目由A公司施工总承包,A公司征得业主同意,把变电所及照明工程分包给B公司。分包合同约定,电力变压器,配电柜等设备由A公司采购;灯具、开关、插座、管材和电线电缆等由B公司采购。 B公司项目部进场后,按公司的施工资源现状,编制了变电所及照明工程施工作业进度 计划(见表1-1),工期需150天,在审批时被A公司否定,要求增加施工人员,优化变电所及照明工程作业进度计划,缩短工期。B公司项目部按A公司要求,在工作持续时间不变的情况下,将照明线管施工的开始时间提前到3月1日,变电所和照明工程平行施工。 在设备、材料到达施工现场后,B公司项目部依据施工图纸和施工方案,对灯具、开关及插座的安装进行技术交底,灯具类型及安装高度(见表1-2)。在施工质量的检查中,监理工程师发现单项三孔插座的保护接地线(PE线)在插座间串联连接(见图1),相线与中性线利用插座本体的接线端子转接供电。监理工程师要求返工,使用连接器对插座的保护接地线、相线和中性线进行分路连接,施工人员按要求整改后通过实验。 表1-1变电所及照明工程施工作业进度计划

表1-2照明灯具安装高度统计表

图1保护接地线在插座间串联连接示意图

【问题】 1.B公司项目部编制的施工作业进度计划表(表1-1)为什么被A公司否定?优化后的进度计划工期缩短为多少天? 2.B公司项目部在编制施工作业进度计划前,应充分了解哪些内容?3.本照明工程有多少个灯具外壳需要与保护导体连接?写出连接的要求。 4.图1中的插座接线会有什么不良后果?画出正确的插座保护接地线连接的示意图。
选项
答案
解析 1.被制止的原因是:未充分考虑工作间的衔接关系和符合工艺规律的逻辑关系。 优化后的工期缩短为90天。

2.编制施工作业计划前应对施工现场条件、作业面现状、人力资源配置、物资供应状况等做充分了解,并对执行中可能遇到的问题及其解决的途径提供对策。 3.只有一类灯具需要与保护导体可靠连接,一共3350个需要与保护导体可靠连接。 连接要求:一类灯具外露可电部分必须用铜芯软导线与保护导体可靠连接,连接处用设置接地标识,铜芯软导线的截面积应与进入灯具的电源线截面积相同。 4.插座保护接地线采用串联连接,当某个插座故障断开时,则造成后面部分接地保护失效;插座接线:单相三孔插座,面对插座的右孔应与相线连接,左孔应与中性导线连接,上孔应与保护接地导线连接。

相关内容:背景,资料,建设项目,公司,施工,业主,变电,照明工程,合同,约定,电力,变压器,配电柜,设备,采购,灯具

猜你喜欢

发表评论
更多 网友评论0 条评论)
暂无评论

访问排行

Copyright © 2012-2014 恰考网 Inc. 保留所有权利。 Powered by tikuer.com

页面耗时0.0782秒, 内存占用1.05 MB, Cache:redis,访问数据库20次