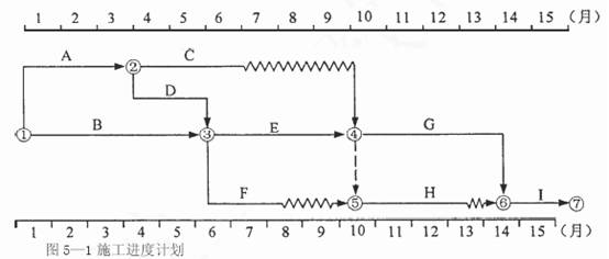
某实施监理的工程,合同工期l5个月,总监理工程师批准的施工进度计划如图5—1所示。 工程实施过程中发生下列事件: 事件1:项目监理机构对由施工单位...

作者: tihaiku 人气: - 评论: 0
问题 某实施监理的工程,合同工期l5个月,总监理工程师批准的施工进度计划如图5—1所示。 工程实施过程中发生下列事件: 事件1:项目监理机构对由施工单位为本工程提供的试验室时要求施工单位提交试验人员资格证书。 事件2:在第5个月初到第8个月末的施工过程中,由于建设单位提出工程变更,使施工进度受到较大影响。截至第8个月末,未完工作尚需作业时间见表5—1。施工单位按索赔程序向项目监理机构提出了工程延期的要求。 事件3:建设单位要求本工程仍按原合同工期完成,施工单位需要调整施工进度计划,加快后续工程进度。经分析得到的各工作有关数据见表5—1。 表5—1 相关数据表 问题1:该工程施工进度计划中关键工作和非关键工作分别有哪些C和F工作的总时差和自由时差分别为多少 问题2:事件1中,监理机构还应检查试验室的哪些内容 问题3:事件2中,逐项分析第8个月末C、E、F工作的拖后时间及对工期和后续工作的影响程度,并说明理由。 问题4:针对事件2,项目监理机构应批准的工程延期时间为多少说明理由。 问题5:针对事件3,施工单位加快施工进度而采取的最佳调整方案是什么相应增加的费用为多少
选项
答案
解析 问题1: 该工程施工进度计划中关键工作:A、D、B、E、G、I;非关键工作:C、F、H。 F工作自由时差:2个月 总时差:2+1=3个月 C工作自由时差:3个月 总时差:3个月。 问题2: 还应检查: (1)试验室的资质及试验范围 (2)法定计量部门对试验设备出具的计量检定证明 (3)试验室管理制度 问题3: C工作:拖后3个月,因其自由时差和总时差均为3个月,其对总工期和后续工作没有影响。E工作:拖后2个月,E工作是关键工作,会影响总工期2个月,使后续工作G、H、I最早开始时间推迟2个月。 F工作:拖后2个月,其自由时差为2个月,总时差为3个月,因此对于总工期和后续工作没有影响。 问题4:应批准延期2个月 理由:建设单位提出工程变更,属于非施工单位原因引起的拖延,使E工作拖延2个月,且其为关键工作。 问题5:I压缩1个月,E压缩一个月。相应增加费用14+18=32(万元)。

相关内容:监理,工程,合同,工期,个月,工程师,施工,进度,计划,如图,1所示,工程实施,事件,项目,机构

猜你喜欢

发表评论
更多 网友评论0 条评论)
暂无评论

访问排行

Copyright © 2012-2014 恰考网 Inc. 保留所有权利。 Powered by tikuer.com

页面耗时0.0408秒, 内存占用1.05 MB, Cache:redis,访问数据库20次