某工程项目业主与监理单位、施工单位分别签订了监理合同和施工合同。施工合同中规定,除空间桁架屋盖可分包给专业工程公司外,其他部分不得分包(除非业主同意)。本...

作者: tihaiku 人气: - 评论: 0
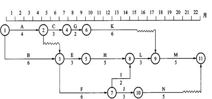
问题 某工程项目业主与监理单位、施工单位分别签订了监理合同和施工合同。施工合同中规定,除空间桁架屋盖可分包给专业工程公司外,其他部分不得分包(除非业主同意)。本项目合同工期为22个月。 在工程开工前,施工单位在合同约定的日期内向总监理工程师提交了施工总进度计划(图1)和一份工程报告。 总监理工程师对施工单位提交的施工进度计划和工程报告进行了审核。施工单位在按总监理工程师确认的进度计划施工0.5个月后,因业主要求需要修改设计,致使工作K(混凝土工程)停工待图2.5个月。设计变更后,施工单位及时通过总监理工程师向业主提出索赔申请。 在施工过程中,部分施工机械由于运输原因未能按时进场,致使工作H的实际进度在第12月底时拖后1个月。 在工作F进行过程中,发生质量事故,总监理工程师下令停工,组织召开现场会议,分析事故原因。该质量事故是由于施工单位施工工艺不符合施工规范要求所致。总监理工程师责成施工单位返工,工作F的实际进度在第12月底时拖后2个月。 <1> 、为了确保本项目工期目标的实现,施工进度计划中哪些工作应作为重点控制对象为什么 <2> 、请在原进度计划中用前锋线表示出第12月底时工作K、H和F的实际进展情况,并分析进度偏差对工程总工期的影响。 <3> 、如果施工单位提出工期顺延2.5个月的要求,总监理工程师应批准工程延期多少为什么
选项
答案
解析 <1>、 工作B、E、H、L、M和F、I应作为重点控制对象。因为它们是关键工作(总时差为零),位于两条关键线路1-3-5-8-9-11和1-3-7-8-9-11上。 <2>、 在时标网络上绘出实际进度前锋线,如图2所示。 图2 时标网络计划图 从图上看出: (1)工作K拖后2.5个月,其总时差为2个月,故将影响工期0.5个月。 (2)工作H拖后1个月,其总时差为零,故将使工期延后1个月。 (3)工作F拖后2个月,其总时差为零,故将使工期延后2个月。 综上所述,由于工作K、H和F的拖后,工期将延长2个月。 <3>、 监理工程师应批准工程延期0.5个月。因为工作H、F的拖后均属施工单位自身的原因造成的,只有工作K的拖后可以考虑给予工程延期。 由于工作K原有总时差为2个月,2.5-2=0.5,故监理工程师应批准工程延期0.5个月。

相关内容:工程项目,业主,监理单位,监理,同和,施工,合同,规定,空间,桁架,屋盖,专业,工程公司,部分

猜你喜欢

发表评论
更多 网友评论0 条评论)
暂无评论

访问排行

Copyright © 2012-2014 恰考网 Inc. 保留所有权利。 Powered by tikuer.com

页面耗时0.0406秒, 内存占用1.05 MB, Cache:redis,访问数据库17次