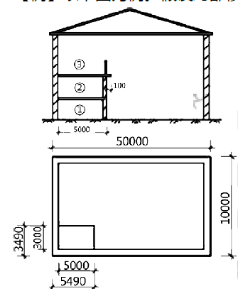
以下图为例。假设局部楼层①、②、③层高均超过2.20m,计算该建筑物建筑面积。

作者: tihaiku 人气: - 评论: 0
问题 以下图为例。假设局部楼层①、②、③层高均超过2.20m,计算该建筑物建筑面积。
选项
答案
解析 首层建筑面积=50×10=500m2   有围护结构的局部楼层②建筑面积=5.49×3.49=19.16m2   无围护结构(有围护设施)的局部楼层③建筑面积=(5+0.1) ×(3+0.1)=15.81m2   合计建筑面积=500+19.16+15.81=534.97m2

相关内容:下图,为例,假设,局部,楼层,层高,建筑物,建筑面积

猜你喜欢

发表评论
更多 网友评论0 条评论)
暂无评论

Copyright © 2012-2014 恰考网 Inc. 保留所有权利。 Powered by tikuer.com

页面耗时0.0453秒, 内存占用1.05 MB, Cache:redis,访问数据库20次