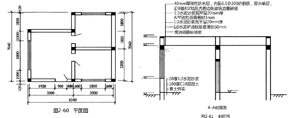
计算如图所示地面工程量。

作者: tihaiku 人气: - 评论: 0
问题 计算如图所示地面工程量。
选项
答案
解析 水泥砂浆地面工程量=3.06*4.76+3.36*2.76+2.76*2.96=32.01㎡

相关内容:如图,地面,工程量

猜你喜欢

发表评论
更多 网友评论0 条评论)
暂无评论

Copyright © 2012-2014 恰考网 Inc. 保留所有权利。 Powered by tikuer.com

页面耗时0.0263秒, 内存占用1.05 MB, Cache:redis,访问数据库19次