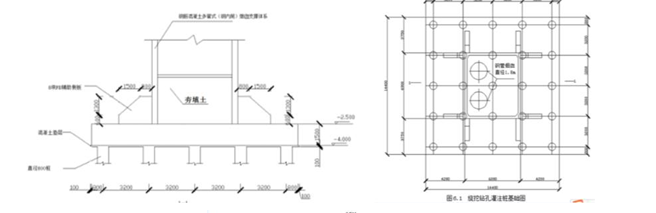
某城市生活垃圾焚烧发电厂钢筋混凝土多管式(钢管内)80米高烟囱基础,如图6.1“钢内筒烟囱基础平面布置图”、图6.2“旋挖钻孔灌注桩基础图”所示。已建成类...

作者: tihaiku 人气: - 评论: 0
问题 某城市生活垃圾焚烧发电厂钢筋混凝土多管式(钢管内)80米高烟囱基础,如图6.1“钢内筒烟囱基础平面布置图”、图6.2“旋挖钻孔灌注桩基础图”所示。已建成类似工程钢筋用量参考指标见表6.1“单位钢筋混凝土钢筋参考用量表” 2.根据问题1的计算结果,及答题卡表6.2中给定的信息,按照《建设工程工程量清单计价规范》(GB50584-2013)的要求,在答题卡表6.2“分部分项工程和单价措施项目清单与计价表”中,编制该烟囱钢筋混凝土基础分部分项工程和单价措施项目清单与计价表。 问题: 1.根据该多管式(钢管内)烟囱基础施工图纸、技术参数及参考资料,及答题卡表6.1给定的信息,按《房屋建筑与装饰工程工程量计算规范》(GB50584-2013)的计算规则,在答题卡表6.1“工程量计算表”中,列式计算该烟囱基础分部分项工程量。(筏板上8块FB辅助侧板的斜面在混凝土浇捣时必须安装模板)。 3.假定该整体烟囱分部分项工程费为2000000.00元;单价措施项目费150000.00元,总价措施项目仅考虑安全文明施工费,安全文明施工费按分部分项工程费的3.5%计取;其他项目考虑基础基坑开挖的土方、护坡、降水专业工程暂估价为110000.00元(另计5%总承包服务费);人工费占比分别为分部分项工程费的8%、措施项目费的15%;规费按照人工费的21%计取,增值税税率按10%计取。按《建设工程工程量清单计价规范》(GB50584-2013)的要求,在答题卡中列示计算安全文明施工费、措施项目费、人工费、总承包服务费、规费、增值税;并在答题卡表6.3“单位工程最高投标限价汇总表”中编制该钢筋混凝土多管式(钢内筒)烟囱单位工程最高投标限价。 (1)安全文明施工费 (2)措施项目费 (3)人工费 (4)总承包服务费 (5)规费 (6)增值税
选项
答案
解析 问题3: 安全文明施工费:2000000.00×3.5%=70000.00元 措施项目费:150000.00+70000.00=220000.00元 人工费:2000000.00×8%+220000.00×15%=193000.00元 总承包服务费:110000.00×5%=5500.00元 规费:193000.00×21%=40530.00元 增值税:(2000000.00+220000.00+110000.00+5500.00+40530.00)×10%=237603.00元

相关内容:城市生活,垃圾焚烧,发电厂,钢筋混凝土,钢管,基础,如图,钢内筒,烟囱,平面,旋挖,钻孔,灌注,桩基础

猜你喜欢

发表评论
更多 网友评论0 条评论)
暂无评论

Copyright © 2012-2014 恰考网 Inc. 保留所有权利。 Powered by tikuer.com

页面耗时0.0462秒, 内存占用1.05 MB, Cache:redis,访问数据库19次