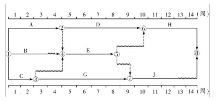
某工程双代号时标网络计划如下图所示(单位:周),其中工作 B 的总时差和自由时差( ) A.均为 1 周 B.分别为 3 周和 1 周 C.均为 3...

作者: tihaiku 人气: - 评论: 0
问题 某工程双代号时标网络计划如下图所示(单位:周),其中工作 B 的总时差和自由时差( )
选项 A.均为 1 周 B.分别为 3 周和 1 周 C.均为 3 周 D.分别为 4 周和 2 周
答案 B
解析

相关内容:工程,代号,时标,网络,计划,下图,单位,工作,时差,周和

猜你喜欢

发表评论
更多 网友评论0 条评论)
暂无评论

Copyright © 2012-2014 恰考网 Inc. 保留所有权利。 Powered by tikuer.com

页面耗时0.0296秒, 内存占用1.05 MB, Cache:redis,访问数据库19次