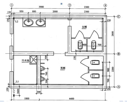
某办公楼内卫生间的给水施工图如图3-5A 和图3-5B 所示。 设计说明: 1.办公楼共6 层,层高3. 6m,墙厚200mm。图中尺寸标...

作者: tihaiku 人气: - 评论: 0
问题 某办公楼内卫生间的给水施工图如图3-5A 和图3-5B 所示。 设计说明: 1.办公楼共6 层,层高3. 6m,墙厚200mm。图中尺寸标注标高以米计,其他均以毫米计。 2.管道采用PP-R 塑料管及成品管件,热熔连接,成品管卡。 3.阀门采用螺纹球阀Q11F-16C,污水池上装铜质水嘴。 4.成套卫生器具安装按标准图集要求施工,所有附件均随卫生器具配套供应。洗脸盆为单柄单孔台上式安装,大便器为感应式冲洗阀蹲式大便器,小便器为感应式冲洗阀壁挂式安装,污水池为成品落地安装。 5.管道系统安装就位后,给水管道进行水压试验。 2.根据《通用安装工程工程量计算规范》的规定,给排水工程相关分部分项工程量清单项目的统一编码见表3-31。 3.塑料给水管定额相关数据见表3-32,表内费用均不包含增值税可抵扣进项税额。该工程的人工单价(包括普工、一般技工和高级技工)综合为100 元/工日,管理费和利润分别占人工费的60%和30%。 4.经计算该办公楼管道安装工程的分部分项工程人材机费用合计为60 万元,其中人工费占25%。单价措施项目中仅有脚手架项目,脚手架搭拆的人材机费用2.4 万元,其中人工费占20%;总价措施项目费中的安全文明施工费用(包括安全施工费、文明施工费、环境保护费、临时设施费)根据当地工程造价管理机构发布的规定按分部分项工程人工费的20%计取,夜间施工费、二次搬运费、冬雨季施工增加费、已完工程及设备保护费等其他总价措施项目费用合计按分部分项工程人工费的12%计取,总价措施费中人工费占30% 。 暂列金额6 万元,不考虑计日工费用。 规费按分部分项工程和措施项目费中全部人工费的25%计取。 上述费用均不包含增值税可抵扣进项税额,增值税税率按9%计取。 问题: 1.按照图3-5A 和图3-5B 所示内容,按直埋(指敷设于室内地坪下埋地的管段)、明敷(指沿墙面架空敷设于室内明处的管段)分别列式计算给水管道安装项目分部分项清单工程量(注:管道工程量计算至支管与卫生器具相连的分支三通或末端弯头处止)。 2.根据《通用安装工程工程量计算规范》和《计价规范》的规定,编制管道、阀门、卫生器具(污水池除外)安装项目的分部分项工程量清单。 3.根据表3-32 给出的相关内容,编制dn32 PP-R 室内明敷塑料给水管道分部分项工程的综合单价分析表。 4.编制该办公楼管道系统单位工程的招标控制价汇总表。
选项
答案
解析 问题1: 解:列式计算PP-R 塑料给水管道的分部分项清单工程量。 1.PP-R 塑料给水管dn65,直埋:2.60+0. 15=2.75(m) 2.PP-R 塑料给水管dn50,直埋:(2.20+2. 80 -0.15 -0.15)+(0.60+0. 60)=5.90(m) 明敷:3. 60×3+1. 30+3. 60×3+0. 40= 23. 30(m) 3.PP-R 塑料给水管dn40,明敷:3.60+3. 60=7.20(m) 4.PP -R 塑料给水管dn32,明敷:3.60+3. 60=7.20(m) L1 支管:[(1.80+4. 40-0. 15 ×2)+(0.70+0. 90-0. 15)+(1.30-0.8)]x6= 47. 10(m) L2 支管:[(3.90+2.30-0.15×2)+(2.80-0.15×2)+(0.70+0.90-0.15)+(0.80-0.40)]×6=61.50(m) 合计:7. 20+47. 10+61. 50= 115. 80(m) 5.PP-R 塑料给水管dn25, 明敷:[(1.30-1.00)+(2.20-0.15-0.30)+(0.70+0.50-0.15)]×6=18.60(m) 问题2: 解:根据计算出的管道、阀门、卫生器具(污水池除外)安装项目的分部分项工程量,填入分部分项工程和单价措施项目清单与计价表,见表3-33。 问题3: 解:室内dn32 室内明敷PP-R 塑料给水管道分部分项工程的综合单价分析表,见表3-34。 问题4: 解:各项费用的计算如下,并填入单位工程招标控制价汇总表中,见表3-35。 1.分部分项工程费合计= 60. 00+60. 00×25%×(60%+30%)=73.50(万元) 其中人工费= 60.00×25%=15.00(万元) 2.措施项目费: 脚手架搭拆费=2. 40+2. 40×20%×(60%+30%)=2.83(万元) 安全文明施工费= 15.00×20%=3.00(万元) 其他措施项目费= 15.00×12%=1.80(万元) 措施项目费合计=2. 83+3.00+1.80=7.63(万元) 其中人工费=2. 40×20%+(3.00+1.80)×30%=1.92(万元) 3.其他项目费=6. 00(万元) 4.规费= (15. 00+1. 92)×25%=4.23(万元) 5.税金=( 73. 50+7. 63+6. 00+4. 23) x9%=8.22(万元) 6 . 招标控制价合计= 73. 50+7. 63+6. 00+4. 23+8. 22= 99. 58 ( 万元)

相关内容:办公,楼内,给水,施工图,如图,和图,办公楼,层高,墙厚,图中,尺寸

猜你喜欢

发表评论
更多 网友评论0 条评论)
暂无评论

Copyright © 2012-2014 恰考网 Inc. 保留所有权利。 Powered by tikuer.com

页面耗时0.0364秒, 内存占用1.06 MB, Cache:redis,访问数据库20次