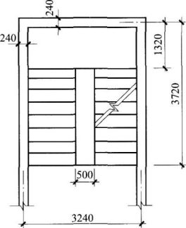
现浇整体式钢筋混凝土楼梯面平面如图,则一层楼梯混凝土工程量为( )m2。 A.9.6 B.10.5 C.10.8 D.11.7

作者: tihaiku 人气: - 评论: 0
问题 现浇整体式钢筋混凝土楼梯面平面如图,则一层楼梯混凝土工程量为( )m2。
选项 A.9.6 B.10.5 C.10.8 D.11.7
答案 D
解析 整体楼梯(包括直形楼梯、弧形楼梯)水平投影面积包括休息平台、平台梁、斜梁和楼梯的连接梁。当整体楼梯与现浇楼板无梯梁连接时,以楼梯的最后一个踏步边缘加300mm为界。 楼梯间宽:3240-240=3000(mm) 楼梯间长:3720+300-120=3900(mm) 楼梯井宽500mm不属扣除之列 所以一层楼梯混凝土工程量为:3.0×3.9=11.7(m2)新教材389-408

相关内容:现浇,体式,钢筋混凝土,楼梯,平面,如图,混凝土,工程量,B.10.5,C.10.8,D.11.7

猜你喜欢

发表评论
更多 网友评论0 条评论)
暂无评论

访问排行

Copyright © 2012-2014 恰考网 Inc. 保留所有权利。 Powered by tikuer.com

页面耗时0.0392秒, 内存占用1.04 MB, Cache:redis,访问数据库20次