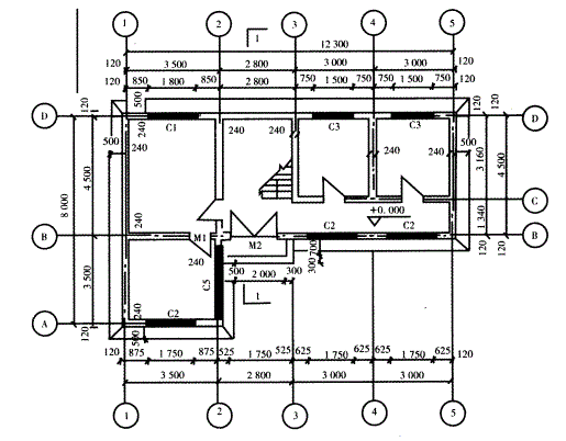
某五层砖混结构办公楼,首层平面图如下图所示。二层及以上各层除将首层M2的位置改为C2外,其他均与首层平面相同,层高均为3.00m,屋顶盖标高15.0m,女...

作者: rantiku 人气: - 评论: 0
问题 某五层砖混结构办公楼,首层平面图如下图所示。二层及以上各层除将首层M2的位置改为C2外,其他均与首层平面相同,层高均为3.00m,屋顶盖标高15.0m,女儿墙顶标高15.60m, 室外地坪为-0.5m,门窗框外围尺寸及材料见门窗框尺寸表。 要求: 1.计算办公楼建筑面积。 2.计算水泥砂浆外墙抹灰工程量。 3.计算门窗工程量。
选项
答案
解析 1.建筑面积=[(8.0 + 0.24)X (3.5 + 0.24)+ (3.0 + 3.0 + 2.8) x (4.5 + 0.24)] x 5 =362. 65 (m2) 或:建筑面积=[(3.5 +2.8 +3 +3 +0.24) x (4.5 +0.24) + (.5 +0.24)x3.5] x 5 = 362. 65 (m2) 2.外墙面抹灰工程量的计算:外墻面抹灰工程量按外墙面的垂直投影面积以m2计算。应扣除门窗洞口、外墙裙和大于0.3m2孔洞所占面积,洞口側壁面积不另增加。附墻垛、梁、柱侧面抹灰面积并入外墻面抹灰工程量内计算。外墻面高度均由室外地坪算起,向上算至:①平屋顶有挑檐(天沟)的,算至挑檐(天沟)底面;②平屋顶无挑檐(天沟)、带女儿墻的,算至女儿墻压顶底面;③坡屋顶带檐口天棚的,算至檐口天棚底面;④坡屋顶带挑檐无檐口天棚的,算至屋面板底,跨出檐者,算至挑檐上表面。 外墙抹灰面积=墻高X墻长-门窗洞口面积 C1面积=1.8 x 1.8 x5 =16.2 (m2) C2 面积=1.75 x 1.8 X (3 +4 x4)=59.85 (m2) C3 面积=1.5 x 1.8 x2 x5 =27 (m2) C5 面积=1.8 x 1.8 x5 = 16. 2 (m2) M2 面积=2 x2.4 =4. 8 (m2) 外墻外边线长=(12.3 +0. 24) x 2 + (8 +0.24)x2 =41.56 (m2) 外墙面总面积=(15.6 +0.5) x 41.56 =669. 12 (m2) 外墙抹灰面积=669. 12 - 16.2 -59. 85 -27 - 16. 2 - 4. 8 =545. 07(m2) 3.门窗工程量: 铝合金门=4. 8 (m2) 纤维板门(M1) =1 x 1.96 x 4 x 5 =39.2 (m2) 铝合金窗(C2/C5) =59. 85 +16. 2 =76. 05(m2) 木窗(C3) =27 + 16.2 =43.2 (m2)

猜你喜欢

发表评论
更多 网友评论0 条评论)
暂无评论

访问排行

Copyright © 2012-2014 恰考网 Inc. 保留所有权利。 Powered by tikuer.com

页面耗时0.0727秒, 内存占用1.04 MB, Cache:redis,访问数据库20次