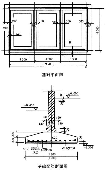
某多层砖混结构基础平面及断面图如下图所示,砖基为一步大放脚,钢筋混凝土带型基础外墙基底宽1 200mm,内墙基底宽为1 000mm。要求:1.计算...

作者: rantiku 人气: - 评论: 0
问题 某多层砖混结构基础平面及断面图如下图所示,砖基为一步大放脚,钢筋混凝土带型基础外墙基底宽1 200mm,内墙基底宽为1 000mm。 要求: 1.计算砖基础工程量。 2.计算钢筋混凝土带型基础及垫层工程量。
选项
答案
解析 1.砖基础工程量=外墙砖基础工程量+内墙砖基础工程量。该题中,内外墙的厚度和高度一样,厚度为 0.24m,高度=1. 35 - 0. 1 - 0.2 - 0.2 + 0.066 =0.916 (m) (0.066 房价层数为1的一砖大放脚的折加高度)。外墙长度为外墙中心线的长度,内墙长度为内墙净长的长度。 外墙中心线长=9.9 x 2+6 x 2 =31. 8 (m) 内墙砖基础净长=(6 - 0.24) x 2 = 11. 52 (m) 砖基础工程量=(1. 35 -0. 1 -0.2 -0.2 +0. 066) x 0. 24 x (31.8 + 11.52) =9.52 (m3) 2.钢筋混凝土基础工程量: 外墙中心线长=9.9 x 2+6 X 2 =31. 8 (m) 内墙混凝土基础净长=(6-0.6 x 2) x2 =9.6 (m) 外墙钢筋混凝土基础=﹛1.2 x 0.2+ [(0.18+0.12) x 2 +1.2] x0.2÷2﹜ x31.8 =13.36 (m3) 内墙钢筋混凝土基础=﹛1.0x0.2+ [ (0.18+0.12) x2 + 1.0] x0.2÷2﹜ x9.6=3.46 (m3) 钢筋混凝土基础=外墙钢筋混凝土基础+内墙钢筋混凝土基础=13.36 +3.46 = 16.82 (m3) 垫层工程量=外墙垫层+内墙垫层=1.2 x0. 1 x31. 8 + 1 x0. 1 x9. 6 =4. 78 (m3)

猜你喜欢

发表评论
更多 网友评论0 条评论)
暂无评论

访问排行

Copyright © 2012-2014 恰考网 Inc. 保留所有权利。 Powered by tikuer.com

页面耗时0.0707秒, 内存占用1.03 MB, Cache:redis,访问数据库19次