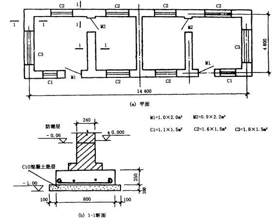
某“小型住宅”(见下图)为现浇钢筋混凝土平顶砖墙结构,室内净高2. 9m,门窗 均用平拱砖过梁,外门M1洞口尺寸为1.0m2 x2.0m2,内门M2洞口尺...

作者: rantiku 人气: - 评论: 0
问题 某“小型住宅”(见下图)为现浇钢筋混凝土平顶砖墙结构,室内净高2. 9m,门窗 均用平拱砖过梁,外门M1洞口尺寸为1.0m2 x2.0m2,内门M2洞口尺寸为0. 9m2 x 2. 2m2, 窗洞高均为1.5m,内外墙均为一砖混水墙,用M2. 5水泥混合砂浆砌筑。 计算砌筑工程量。
选项
答案
解析 (1)计算应扣除工程量: ①门 M1: 1 x2 x2 x0. 24 = 0. 96 (m3) M2: 0. 9 x2. 2 x2 x0. 24 = 0. 95 (m3), 窗:(1. 8 x2 +1. 1 x2 + 1. 6 x6) x 1. 5 x0. 24 =5. 544 (m3) ②砖平拱过梁: M1: (1. 00 +0. 1) x 0. 24 x 0. 24 x 2 = 0. 127 (m3) M2: (0. 9 +0. 1) xO. 24 x0. 24 x2 = 0. 115 (m3) C: (1. 8 x2 +0. 1 x 2) x 0.365 x0. 24 + (1. 1 +0.1) x 2 x 0. 24 x 0. 24 + (1. 6 + 0. 1) x6 x 0. 365 x 0.24 = 1.365 (m3) 共扣减:0. 96 +0. 95 +5. 544 +0. 127 +0. 115 + 1. 365 =9. 06 (m3) (2)计算砖墙毛体积: 墙长:外墙:(14. 4 +4. 8) x2 =38. 4 (m) 内墙:(4.8 -0.24) x3 = 13.68 (m) 砖墙毛体积:(38.4 + 13.68) x2. 9 x0. 24 =36. 25 (m3) (3)砌筑工程量: 内外砖墙:36.25 -9.06 =27.19 (m3) 砖平拱:0.127 +0.115 + 1.365 = 1.61 (m3) 砖基础:52.08 x(0. 24 x0.65 +0.01575) =8.94 (m3)

猜你喜欢

发表评论
更多 网友评论0 条评论)
暂无评论

访问排行

Copyright © 2012-2014 恰考网 Inc. 保留所有权利。 Powered by tikuer.com

页面耗时0.0572秒, 内存占用1.03 MB, Cache:redis,访问数据库15次