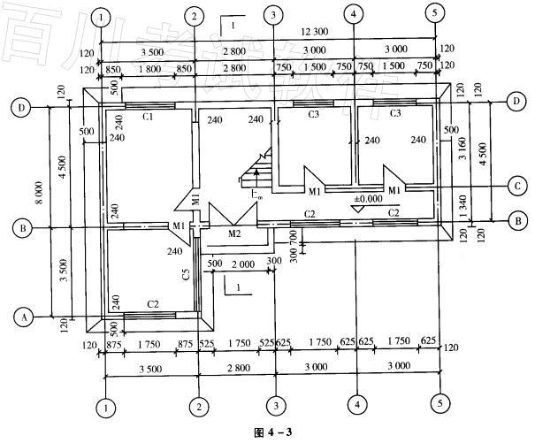
某五层砖混结构办公楼,首层平面图如图4-3。二层及以上各层除将首层M2的位置改为C2外,其他均与首层平面相同,层高均为3. 00m,屋顶盖标高15.0m,...

作者: rantiku 人气: - 评论: 0
问题 某五层砖混结构办公楼,首层平面图如图4-3。二层及以上各层除将首层M2的位置改为C2外,其他均与首层平面相同,层高均为3. 00m,屋顶盖标高15.0m,女儿墙顶标高15.60m,室外地评为-0.5m,门窗框外围尺寸及材料见表4 - 1。 求:(1)办公楼建筑面积; (2)水泥砂浆外墙抹灰工程量; (3)门窗工程量。
选项
答案
解析 解(1)建筑面积=[(8.0+0.24)×(3.5 +0.24) + (3.0 +3.0 +2.8)×(4.5 + 0.24)]×5 =362.65 (m2) (2)外墙抹灰面积=墙高×墙长-门窗洞口面积 C1面积=1. 8 ×1. 8×5 =16. 2 (m2) C2 面积=1.75×1. 8×(3 +4×4) =59.8 (m2) C3 面积= 1. 5×1. 8×2×5= 27 (m2) C5 面积= 1.8 ×l.8×5 =16. 2 (m2) M2 面积=2×2. 4 = 4. 8 (m2) 外墙外边线长=(12. 3 +0. 24)×2 + (8 +0.24)×2 =41. 56 (m2) 外墙面总面积=(15.6 +0.5)×41. 56 =669. 12 (m2) 外墙抹灰面积=669. 12 - 16. 2 -59. 85 -27-16. 2 -4. 8 =545.07 (m2) (3)门窗工程量 . 铝合金门:4.8 (m2) 纤维板门(M1): 1×1.96×4×5 =39.2 (m2) 铝合金窗(C2\ C5) : 59. 85 +16. 2 =76.05 (m2) 木窗(C3): 27 +16.2 =43.2 (m2)

猜你喜欢

发表评论
更多 网友评论0 条评论)
暂无评论

访问排行

Copyright © 2012-2014 恰考网 Inc. 保留所有权利。 Powered by tikuer.com

页面耗时0.0402秒, 内存占用1.03 MB, Cache:redis,访问数据库17次