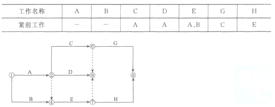
根据下表给定的逻辑关系绘制某分部工程双代号网络计划如下图所示,其作图错误的是()。 A.节点编号不对 B.有多个终点节点 C.有多个起点节点 ...

作者: tihaiku 人气: - 评论: 0
问题 根据下表给定的逻辑关系绘制某分部工程双代号网络计划如下图所示,其作图错误的是()。
选项 A.节点编号不对 B.有多个终点节点 C.有多个起点节点 D.逻辑关系不对
答案 B
解析 教材P138页 (7)双代号网络图中应只有一个起点节点和一个终点节点(多目标网络计划除外),而其他所有节点均应是中间节点。此图出现2个终点节点即节点8和9。

相关内容:根据,逻辑,关系,分部,工程,代号,网络,计划,下图,错误,节点,编号,终点,起点

猜你喜欢

发表评论
更多 网友评论0 条评论)
暂无评论

访问排行

Copyright © 2012-2014 恰考网 Inc. 保留所有权利。 Powered by tikuer.com

页面耗时0.0690秒, 内存占用1.05 MB, Cache:redis,访问数据库19次