某新建工程,建筑面积15000m2,地下两层,地上六层,钢筋混凝土框架结构采用800mm 厚钢筋混凝土筏板基础,建筑总高25m。建设单位与A 施工总承包单...

作者: tihaiku 人气: - 评论: 0
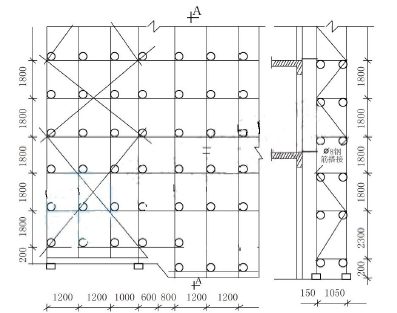
问题 某新建工程,建筑面积15000m2,地下两层,地上六层,钢筋混凝土框架结构采用800mm 厚钢筋混凝土筏板基础,建筑总高25m。建设单位与A 施工总承包单位签订了总承包合同。在合同履行过程中,发生了下列事件中: 事件一:A 施工总承包单位在项目管理过程中,将防火门的制作与安装分包给了项目经理的亲戚王某人,并签订分包合同。与F 劳务公司进行了主体结构劳务分包洽谈,约定将模板和脚手架费用计入承包总价,并签订了劳务分包合同。经建设单位同意,F 劳务公司又将其承包的劳务部分的50%分包给B 劳务公司施工。 事件二:项目部在监理工程师的见证下进行了结构实体检验,结构实体检验的内容包括混凝土强度等。 事件三:外装修施工时,施工单位搭设了扣件式钢管脚手架(如图)。架体搭设完成后进行了验收检查,并提出了整改意见。 事件四:楼层内配备了消防立管,管径50mm,在临时搭建的95m2木工加工棚内,配备了2 只10L 的灭火器。室外临时消防车道的净空高度为3.9m。 【问题】 1.指出事件一中总包单位和分包单位做法是否妥当并说明理由? 2.指出事件一中结构实体检验的其他内容。 3.指出事件二中脚手架搭设的错误之处。 4.指出事件三中的不妥之处,并写出正确做法。
选项
答案
解析 1.(1)A 施工总承包单位在项目管理过程中,将防火门的制作与安装分包给了项目经理的亲戚王某人,并签订分包合同不妥当。 理由:按照相关规定,施工单位将工程分包给个人的属于违法分包。A 施工总承包单位将防火门的制作与安装分包给了王某人,属于违法分包。 (2)A 与F 劳务公司进行了主体结构劳务分包洽谈,约定将模板和脚手架费用计入承包总价,并签订了劳务分包合同不妥当。 理由:按照相关规定,劳务分包单位除计取劳务作业费用外,还计取主要建筑材料款、周转材料款和大中型施工机械设备费用的属于违法分包。所以A 与F 除了劳务分包外,将模版和脚手架计入承包总价属于违法分包。 (3)经建设单位同意,F 劳务公司又将其承包的劳务部分的50%分包给B 劳务公司施工不妥当。 理由:按照相关规定,劳务分包单位将其承包的劳务再分包的属于违法分包。所以F 劳务公司又将其承包的劳务部分的50%分包给B 劳务公司施工属于违法分包。 2.P286 钢筋保护层厚度、结构位置与尺寸偏差、合同约定项目以及必要的可检验的其他项目 3.不妥之处一:横向扫地杆放在了纵向扫地杆上方。 不妥之处二:当立杆的基础不在同一高度上时,高处纵向扫地杆只向低处延长了一跨。 (必须将高处的纵向扫地杆向低处延长两跨与立杆固定) 不妥之处三:脚手架的步距一般不超过1.8m,而本图中低处脚手架的最下一步步距为2.3m。 不妥之处四:使用只有钢筋的柔性连墙件将脚手架与建筑物连接。 (该脚手架宜采用刚性连墙件与建筑物可靠连接,亦可采用钢筋与顶撑配合使用的附墙方式,严禁使 用只有钢筋的柔性连墙件) 不妥之处五:首层位置连墙件的垂直间距大于4m。 不妥之处六:部分横向水平杆和横向扫地杆没有和立杆固定。 不妥之处七(八):立杆最上一步外,不应采用搭接的方式,而应采用对接,本图中,采用了搭接;剪刀撑斜杆应该采用搭接,不能采用对接连接。 4.(1)不妥之处一:楼层内配备了消防立管,管径50mm 不妥。 正确做法:临时消防立管的管径不得小于75mm。 (2)不妥之处二:木工加工棚内配备2 只10L 灭火器不妥。 正确做法:应该是每25 平方米配备1 只种类合适的灭火器,95 平方米应该配备4 只种类合适的灭火器。 (3)不妥之处三:室外临时消防车道的净空高度为3.9m。 正确做法:室外临时消防车道的净空高度不小于4m。

相关内容:工程,建筑面积,15000m2,地下,钢筋混凝土,框架结构,筏板,基础,建筑,总高,建设单位,施工

猜你喜欢

发表评论
更多 网友评论0 条评论)
暂无评论

访问排行

Copyright © 2012-2014 恰考网 Inc. 保留所有权利。 Powered by tikuer.com

页面耗时0.0288秒, 内存占用1.05 MB, Cache:redis,访问数据库19次