某人防工程,建筑面积5000m?,地下一层,层高4.0m,基础埋深为自然地面以下6.5m。建设单位委托监理单位对工程实施全过程监理,建设单位和某施工单位根...

作者: tihaiku 人气: - 评论: 0
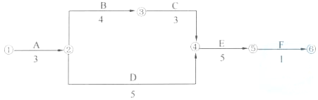
问题 某人防工程,建筑面积5000m?,地下一层,层高4.0m,基础埋深为自然地面以下6.5m。建设单位委托监理单位对工程实施全过程监理,建设单位和某施工单位根据《建设工程施工合同(示范文本)》GF-19990201签订了施工承包合同。 工程施工过程中发牛了下列事件: 事件一:施工单位进场后,根据建设单位提供的原场区内方格控制网坐标进行该建筑物的定位测设。 事件二:工程楼板组织分段施工,某一段各工序的逻辑关系见下表: 事件三:砌体工程施工时,监理工程师对工程变更部分新增构造柱的钢筋做法提出疑问。 事件四:工程在设计时就充分考虑“平战结合、综合使用”的原则,平时用作停车库,人员通过电梯或楼梯通道上到地面。 工程竣工验收时,相关部门对主体结构、建筑电气、通风空调、装饰装修等分部工程进行了验收。 问题: 1.事件一中,建筑物细部点定位测设有哪几种方法?本工程最适宜采用的方法是哪一种? 2.根据事件二表中给出的逻辑关系,绘制双代号网络计划图,并计算该网络计划图的工期。 3.事件三中,顺序列出新增构造柱钢筋安装的过程。 4.根据人防工程的特点和事件四中的描述,本工程验收时还应包含哪些分部工程?
选项
答案
解析 1.(1)建筑物细部点测设方法常用的有:直角坐标法、极坐标法、角度前方交会法和距离交会法。 (2)本工程最适宜采用的方法是直角坐标法。 2.(1)网络计划图如下: (2)该网络计划图的工期为:T=3+4+3+5+1=16d。 3.构造柱钢筋安装过程: (1)对构造柱定位,上下端部弹线; (2)根据配置竖向钢筋的直径和数量在相应位置钻孔; (3)在钻孔部位植筋(使用建筑用结构胶); (4)设计规定数量的箍筋预就位于柱立筋下端部; (5)绑扎立(主)筋; (6)将预就位的箍筋按间距要求分布并与立(主)筋绑扎牢固成型。 4.本工程验收时还应包含下述分部工程:地基与基础、建筑屋面、建筑给排水及采暖、智能建筑、电梯等。 1.建筑物细部点的平面位置测设的方法很多,要根据控制网的形式及分布、放线的精度要求及施工现场的条件来选用。 主要由以下几种方法: (1)直角坐标法。当建筑场地的施工控制网为方格网或轴线形式时,采用直角坐标法放线最为方便。用直角坐标法测定一已知点的位置时,只需要按其坐标差数量取距离和测设直角,用加减法计算即可,工作方便,并便于检查,测量精度亦较高。 (2)极坐标法。用极坐标法测定一点的平面位置时,系在一个控制点上进行,但该点必须与另一控制点通视。根据测定点与控制点的坐标,计算出它们之间的夹角与距离,按极角与极距之值即可将给定的点位定出。该法适用于测设点靠近控制点,便于量距的地方。 (3)角度前方交会法。适用于不便量距或测设点远离控制点的地方。对于一般小型建筑物或管线的定位,亦可采用此法。 (4)距离交会法。从控制点到测设点的距离,若不超过测距的长度时,可用距离交会法来测定。用距离交会法来测定点位,不需要使用仪器,但精度较低。对背景材料进行分析可知,本工程最适宜采用的方法是直角坐标法。 解题思路:这是一道施工测量方法方面的试题,主要涉及建筑物细部点的平面位置测设的方法。 2.网络计划的绘制。绘制网络计划时,首先要严格按照《工程网络计划技术规程》中规定的七条绘制规则绘制;其次,要正确运用虚箭线,正确反映工作间的既定关系(即逻辑关系,包括组织关系和工艺关系),使有关系的工作一定把关系表达准确,且不能漏画“关系”,使无关系的工作一定不要扯上“关系”。针对本题而言,网络计划比较简单,可利用平行线路和关键线路的关系判断出,关键线路为:A→B→C→E→F,可见计算工期为:3+4+3+5+1=16d。如果是比较复杂的网络计划,建议利用前述标号法作答。 解题思路:这是一道施工进度控制方面(网络计划方法在建筑工程中的应用)的试题,主要涉及双代号网络计划的绘制、计算工期和关键线路的确定。 3.应该按照砖混结构构造柱施工的特点、程序,并结合钢筋混凝土结构钢筋安装方面的施工工艺与规范要求,按程序逐步作答。作答时,要特别注意该构造柱是“增设”的,可见其安装过程就应包含定位、弹线、钻孔、植筋等因“增设”而产生的“工艺”过程。 解题思路:这是一道主体结构施工技术方面的试题,主要涉及砖混结构钢筋混凝土构造柱钢筋安装的施工技术。 4.分部分项工程验收。背景材料给出的人防工程,平时用作停车库,人员通过“电梯”或楼梯通道到达地面,可见其验收分部工程应包括:地基基础、主体结构、建筑屋面、建筑装饰装修、建筑电气、建筑给排水、建筑采暖、建筑通风空调、建筑节能、智能建筑、建筑电梯等。 解题思路:这是一道建筑工程分部工程质量验收方面试题,涉及建筑工程验收分部工程的划分。

相关内容:人防,工程,建筑面积,地下,层高,基础,自然,地面,建设单位,委托,监理单位,工程实施,全过程,监理

猜你喜欢

发表评论
更多 网友评论0 条评论)
暂无评论

访问排行

Copyright © 2012-2014 恰考网 Inc. 保留所有权利。 Powered by tikuer.com

页面耗时0.0327秒, 内存占用1.06 MB, Cache:redis,访问数据库19次