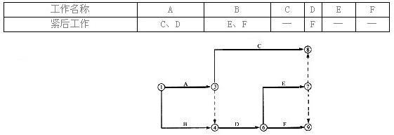
根据下表给定的工作间逻辑关系绘成的双代号网络图如下图所示,其中错误的是(  )。 A.节点编号有误 B.有循环回路 C.有多个起点节点 D.有...

作者: tihaiku 人气: - 评论: 0
问题 根据下表给定的工作间逻辑关系绘成的双代号网络图如下图所示,其中错误的是(  )。
选项 A.节点编号有误 B.有循环回路 C.有多个起点节点 D.有多个终点节点 E.不符合给定的逻辑关系
答案 DE
解析 在该网络图中,节点⑧和⑨均为终点节点,工作B和工作D与其紧后工作不符合给定的逻辑关系。双代号网络图节点编号顺序应从小到大,可不连续,但严禁重复。

相关内容:根据,工作间,逻辑,关系,代号,网络,图如,下图,错误,节点,编号,循环,回路,起点

猜你喜欢

发表评论
更多 网友评论0 条评论)
暂无评论

访问排行

Copyright © 2012-2014 恰考网 Inc. 保留所有权利。 Powered by tikuer.com

页面耗时0.0520秒, 内存占用1.05 MB, Cache:redis,访问数据库20次