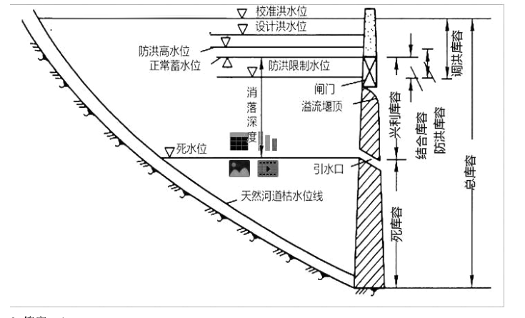
结合库容是水库正常蓄水位与( )之间的库容。A.校核洪水位 B.死水位 C.防洪高水位 D.防洪限制水位

作者: tihaiku 人气: - 评论: 0
问题 结合库容是水库正常蓄水位与( )之间的库容。
选项 A.校核洪水位 B.死水位 C.防洪高水位 D.防洪限制水位
答案 D
解析

相关内容:库容,水库,水位,洪水位,防洪,高水位,限制

猜你喜欢

发表评论
更多 网友评论0 条评论)
暂无评论

Copyright © 2012-2014 恰考网 Inc. 保留所有权利。 Powered by tikuer.com

页面耗时0.0294秒, 内存占用1.03 MB, Cache:redis,访问数据库15次