【背景资料】某施工单位承接了一条道路的施工,路线全长 5km,路基宽度为 8.5m,路面宽度为 2×3.5m。该工程内容包括路基,桥梁及路面工程等。为...

作者: tihaiku 人气: - 评论: 0
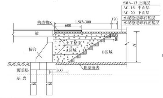
问题 【背景资料】某施工单位承接了一条道路的施工,路线全长 5km,路基宽度为 8.5m,路面宽度为 2×3.5m。该工程内容包括路基,桥梁及路面工程等。为减少桥头不均匀沉降及桥头跳车,桥台与路堤交接处按图施工,主要施工内容包括:地基清表、挖台阶、A区域分层填筑、铺设土工格栅、设置构造物 K、路面铺筑等。路面结构层如图 2所示,B区域为已经填筑完成的路堤填筑区域。 该项目实施过程中发生了如下事件: 事件一:针对基层与底基层的施工,施工单位在施工组织设计中做了详细要求,现摘录 4条技术要点如下: 1.应在下承层施工质量检测合格后,开始摊铺上层结构层。采用两层连续摊铺时,下层质量出了问题时,上层应同时处理; 2.对无法使用机械摊铺的超宽路段,按照设计宽度进行填筑; 3.气候炎热,干燥时碾压稳定中、粗混合料,含水率比最佳含水率降低 0.5~1.5个百分点。 事件二:施工单位对 K5+500+800路段的基层完成碾压并经压实度检查合格后,及时实施养护,但因养护条件欠佳,导致基层出现了裂缝。经过弯沉检测,该段基层的承载力满足设计要求。施工单位对裂缝采取了相应的技术措施处理后,继续铺筑上面的沥青混凝土面层。 事件三:施工单位完成约定的全部工程内容,且经施工自检合格后,向 C单位提交 D报告,申请竣工验收,并经总监理工程师签署意见。对符合竣工验收要求的工程,C单位负责组织勘察、设计、监理等单位组成的专家组实施验收。 1.写出图 2中构造物 K的名称。 2.图中 A区域应采用哪些特性的填料回填? 3.对事件一中的 3条技术要点逐条判断对错,并改正错误之处。 4.写出两条可对事件二中裂缝修复的技术措施。 5.写出事件三中 C单位、D报告的名称。
选项
答案
解析 1.构造物 K:桥头搭板。 2.透水性材料,不得采用含有泥草、腐殖物或冻土块的土。透水性材料不足时,可采用石灰土或水泥稳定回填。 3. 第 1条正确; 第 2条错误。正确做法:对无法使用机械摊铺的超宽路段,应采用人工同步摊铺、 修整,并同时碾压成型; 第 3条错误。正确做法:气候炎热干燥时,碾压时的含水率可比最佳含水率增加 0.5~1.5个百分点。 4.裂缝修复的技术措施:①在裂缝位置灌缝;②在裂缝位置铺设玻璃纤维格栅;③洒铺热改性沥青。 5. C单位:建设单位。D报告:工程竣工报告。

相关内容:背景,资料,道路,施工,路线,全长,路基,宽度,路面,工程,内容包括,桥梁

猜你喜欢

发表评论
更多 网友评论0 条评论)
暂无评论

Copyright © 2012-2014 恰考网 Inc. 保留所有权利。 Powered by tikuer.com

页面耗时0.0272秒, 内存占用1.05 MB, Cache:redis,访问数据库19次